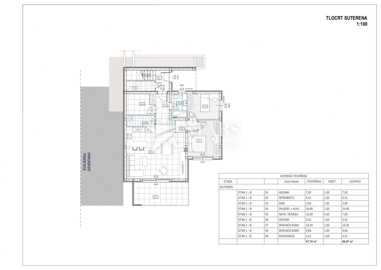
Objektbeschreibung
In Omišalj auf der Insel Krk steht eine moderne Wohnung mit zwei Schlafzimmern, Wohnzimmer und überdachter Terrasse zum Verkauf, mit einer gesamten berechneten Fläche von 89,97 m². Sie befindet sich im Souterrain eines kleineren Wohngebäudes mit insgesamt drei Wohnungen, in einer ruhigen und attraktiven Straße.
Die Wohnung besteht aus:
Mehr lesen
Objekt ID: 1336614
Preis: € 326.000
Nutzfläche: 0 m2
Gesamtfläche: 0 m2
Ziimmer insgesamt: 4
Schlafzimmer: 4
Badezimmer: 1
Nutzungsart: Wohnen
Provisionspflichtig: ja














