Erweiterte Suche
Suchagent aktivieren
Exklusive Anzeigen

Stilvoll wohnen. Nachhaltig leben. Ideal gelegen -Nobile Greenville

€ 219.000,00

,

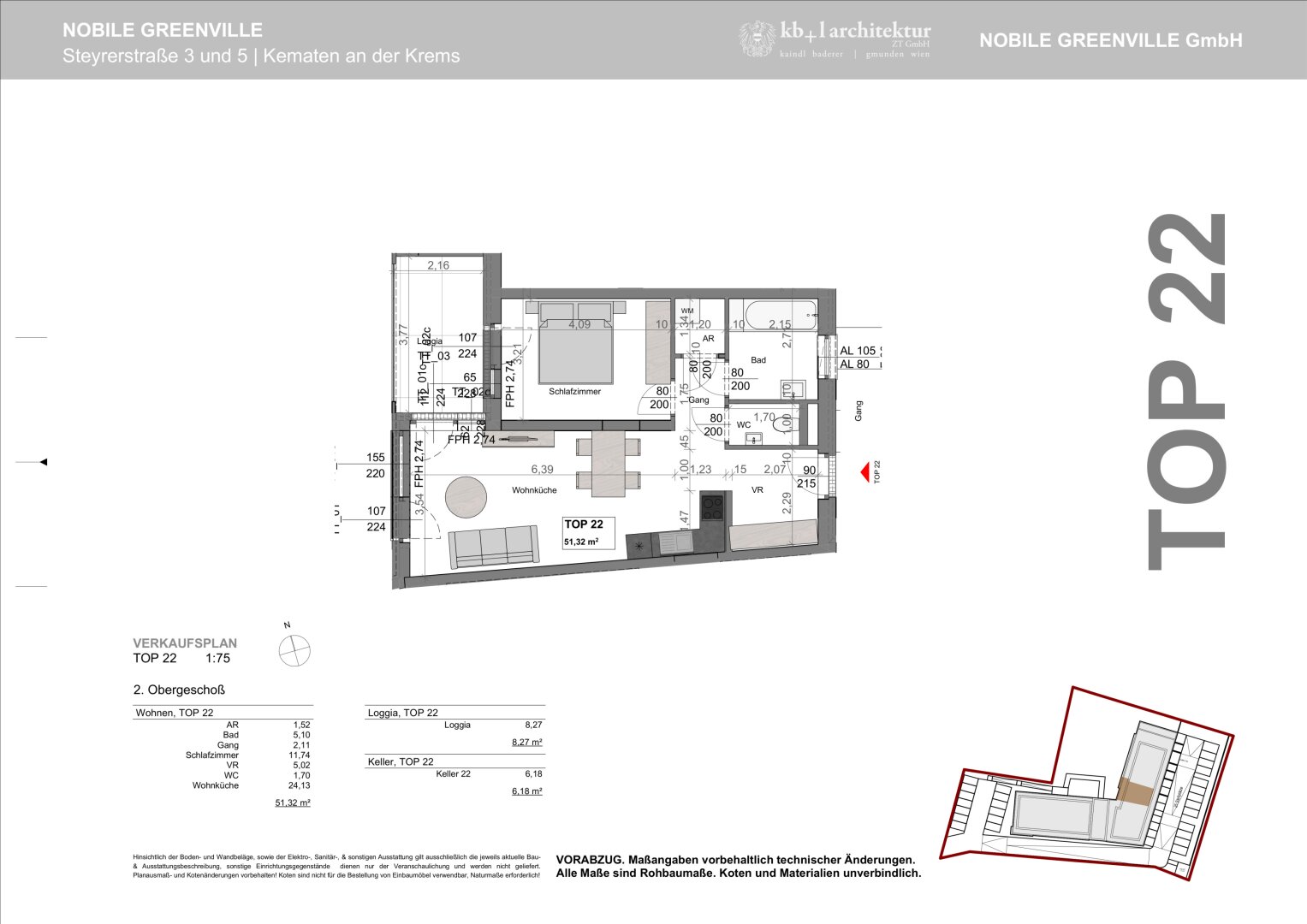
51.32 Zimmer
zu Favoriten hinzufügen
teilen
Suchergebnisse

Objektbeschreibung

28 exklusive & hochwertige Eigentumswohnungen z_wischen Linz, Wels & Steyr _

Mit Nobile Greenville entsteht ein modernes Wohnprojekt mit insgesamt 28 stilvollen Eigentumswohnungen, die Design, Wohnkomfort und Umweltbewusstsein perfekt vereinen. In bester Lage zwischen Wels, Linz und Steyr im Herzen von Kematen an der Krems, mit optimaler Anbindung an den oberösterreichischen
Mehr lesen

Dokumente
Bezirk:
Bundesland:
PLZ: 4531
Land: Österreich
Objekt ID: 1348796
Preis: € 219.000
Nutzfläche: 51 m2
Gesamtfläche: 60 m2
Ziimmer insgesamt: 2
Schlafzimmer: 2
Badezimmer: 0
Miete/m2 €: 3675.11
Nutzungsart: Anlage
Provisionspflichtig: ja
Provision: 3% des Kaufpreises zzgl. 20% USt.
HWB: 30,20 kWh/(m²*a)
HWB Klasse: B
FGEE: 0.66
E-Ausweis Gültig Bis:: 21.03.2026
Energieausweis Art: Bedarf
Balkon/Terrassen - Fläche: 8
Etage: 2. Etage
barrierefrei
Neubau
Personenaufzug
Fußbodenheizung
Carport
Dielen
Fernwärme

Ähnliche Objekte

vergleichen
6dWefrB2NBEqMvnfnKv9tO

Stilvoll wohnen. Nachhaltig leben. Ideal gel...

€ 310.000
3
Schlafzimmer
73 m2
Größe
April 27, 2026
vergleichen
5Q4eW9OWyVaIXfhqDlrXXR

Exklusive 3- Zimmerwohnung mit Weitblick ...

€ 289.000
3
Schlafzimmer
67 m2
Größe
April 27, 2026
vergleichen
1KJPhIteF0nlNbiRamIH5V

Ihre neues Zuhause – Stilvoll. Nachhal...

€ 298.000
3
Schlafzimmer
70 m2
Größe
April 19, 2026

Vergleichen