Objektbeschreibung
28 exklusive & hochwertige Eigentumswohnungen z_wischen Linz, Wels & Steyr _
Mit Nobile Greenville entsteht ein modernes Wohnprojekt mit insgesamt 28 stilvollen Eigentumswohnungen, die Design, Wohnkomfort und Umweltbewusstsein perfekt vereinen. In bester Lage zwischen Wels, Linz und Steyr im Herzen von Kematen an der Krems, mit optimaler Anbindung an den oberösterreichischen
Mehr lesen
Dokumente
Objekt ID: 1348796
Preis: € 219.000
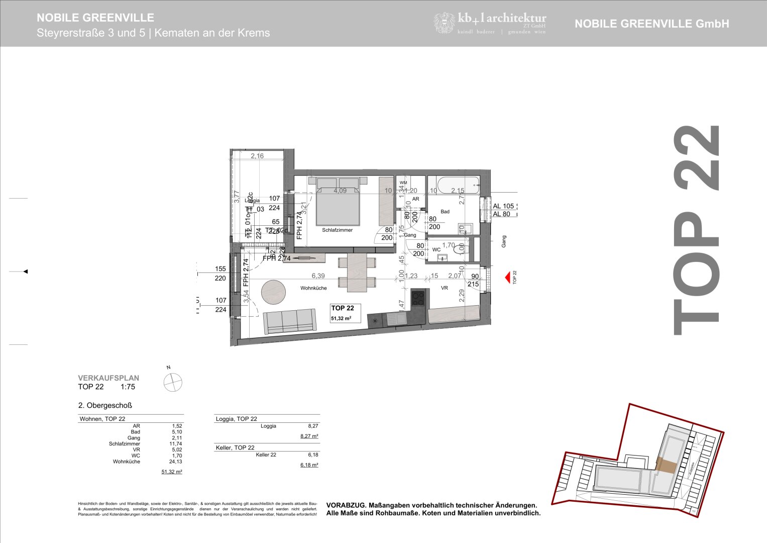
Nutzfläche: 51 m2
Gesamtfläche: 60 m2
Ziimmer insgesamt: 2
Schlafzimmer: 2
Badezimmer: 0
Miete/m2 €: 3675.11
Nutzungsart: Anlage
Provisionspflichtig: ja
Provision: 3% des Kaufpreises zzgl. 20% USt.
HWB: 30,20 kWh/(m²*a)
HWB Klasse: B
FGEE: 0.66
E-Ausweis Gültig Bis:: 21.03.2026
Energieausweis Art: Bedarf
Balkon/Terrassen - Fläche: 8
Etage: 2. Etage
barrierefrei
Neubau
Personenaufzug
Fußbodenheizung
Carport
Dielen
Fernwärme






