Objektbeschreibung
Stilvolle Neubauwohnung in schöner Wohnlage
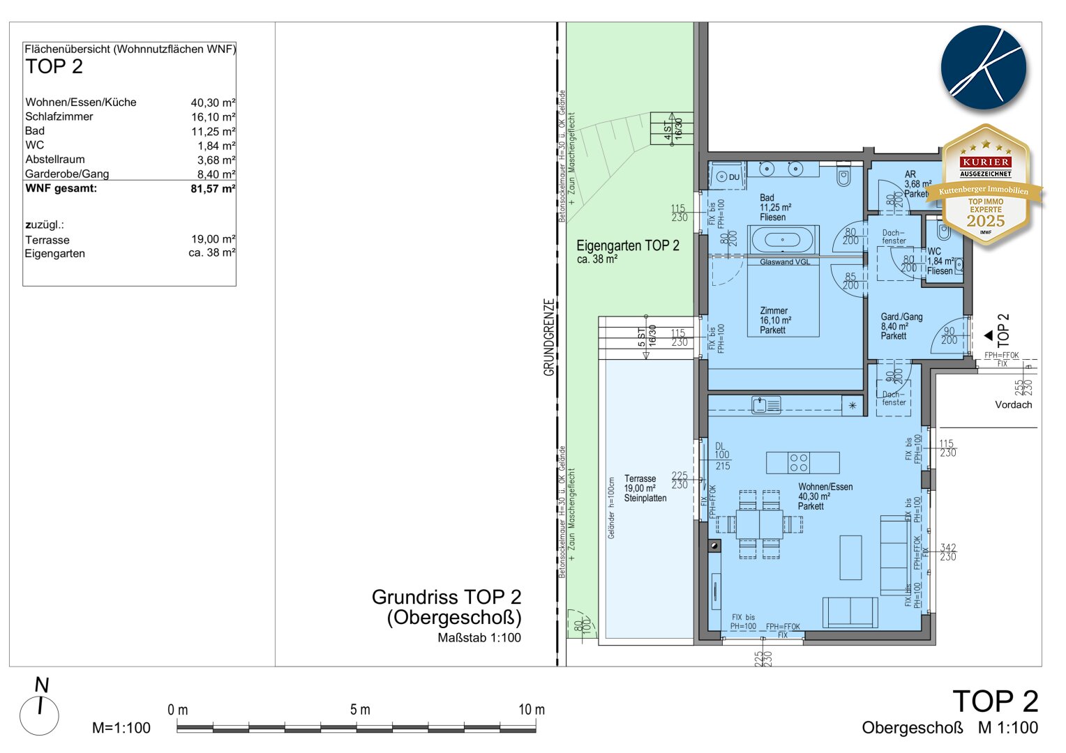
Die Wohnung verfügt über eine Wohnfläche von 81,57 m² zuzüglich ca. 19 m² Terrasse und ca. 38 m² Eigengarten.
Die Wohnfläche gliedert sich in einen großzügigen Wohn-Ess-Bereich mit ausgestatteter Einbauküche mit Ausgang auf die Terrasse, ein Schlafzimmer, einen Abstellraum, ein hochwertiges Badezimmer mit Badewanne und
Mehr lesen
Objekt ID: 1350016
Preis: € 369.000
Nutzfläche: 82 m2
Gesamtfläche: 0 m2
Ziimmer insgesamt: 2
Schlafzimmer: 2
Badezimmer: 1
Nutzungsart: Anlage
Provisionspflichtig: ja
Provision: 3% des Kaufpreises zzgl. 20% USt.
HWB: 41 kWh/(m²*a)
FGEE: 0.72
Energieausweis Art: Bedarf
Balkon/Terrassen - Fläche: 19
Etage: 1. Etage
WC: 2
Abstellräume: 1
barrierefrei
Neubau
Einbauküche
Personenaufzug
Gäste-WC
Gas
Parkett
Bad mit Fenster
Zentralheizung
Freiplatz
Ähnliche Objekte
Top Lage – sehr helle und gepflegte 3 ...
€ 408.000
3
Schlafzimmer
1
Badezimmer
100 m2
Größe
Oktober 24, 2025






