Objektbeschreibung
Herzlich willkommen in Ihrer neuen Penthouse in Eichenberg, direkt am Bodensee!
Hier steht ein außergewöhnliches und exklusives Objekt zum Verkauf, das Ihnen den perfekten Rückzugsort bietet und gleichzeitig alle Annehmlichkeiten des modernen Lebens vereint.
Schon beim Betreten des Penthouse wird Ihnen der Atem stocken. Der Blick auf den Bodensee und
Mehr lesen
Dokumente
Objekt ID: 1364427
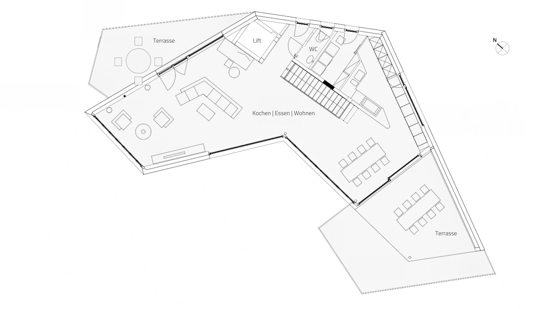
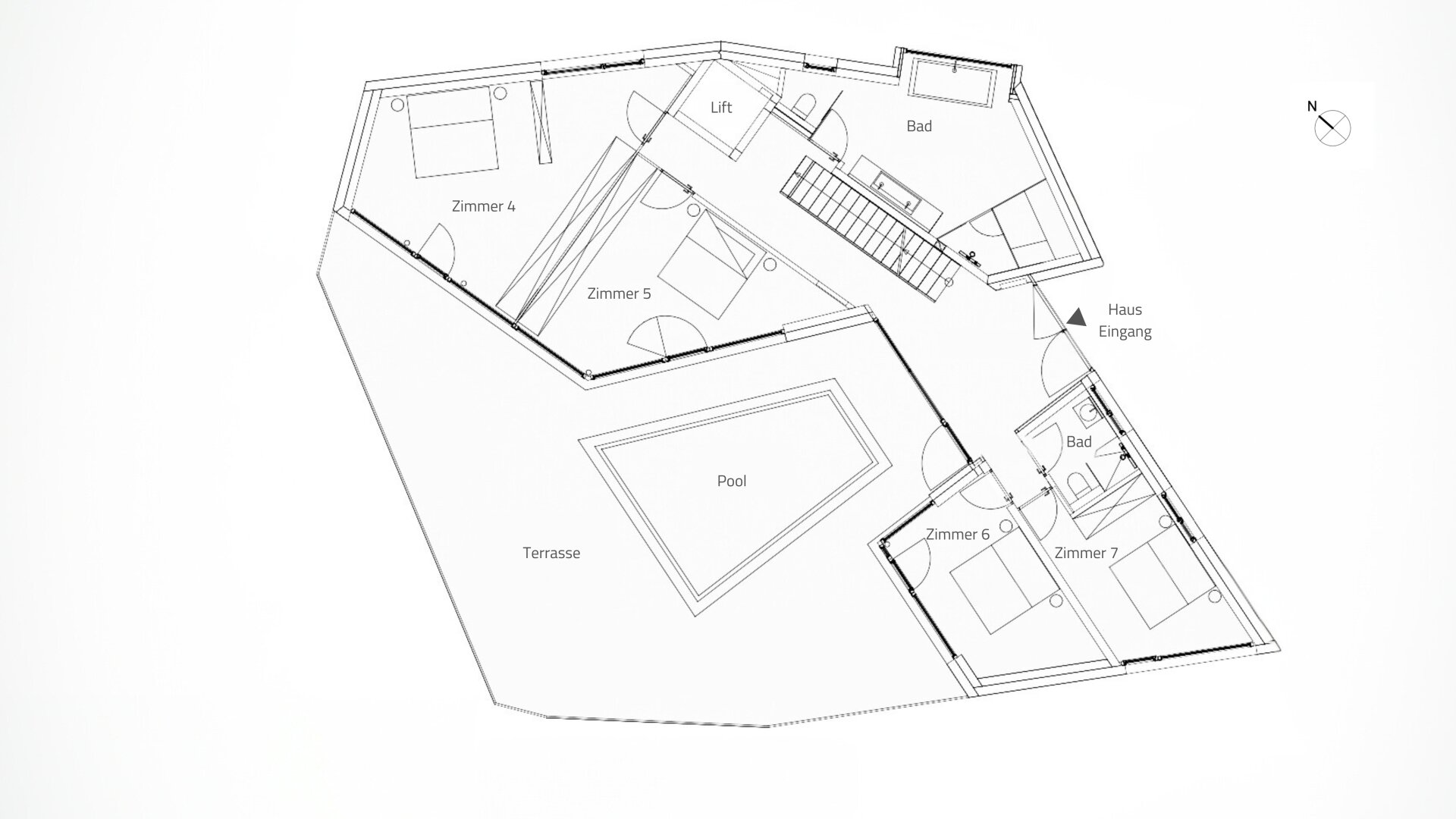
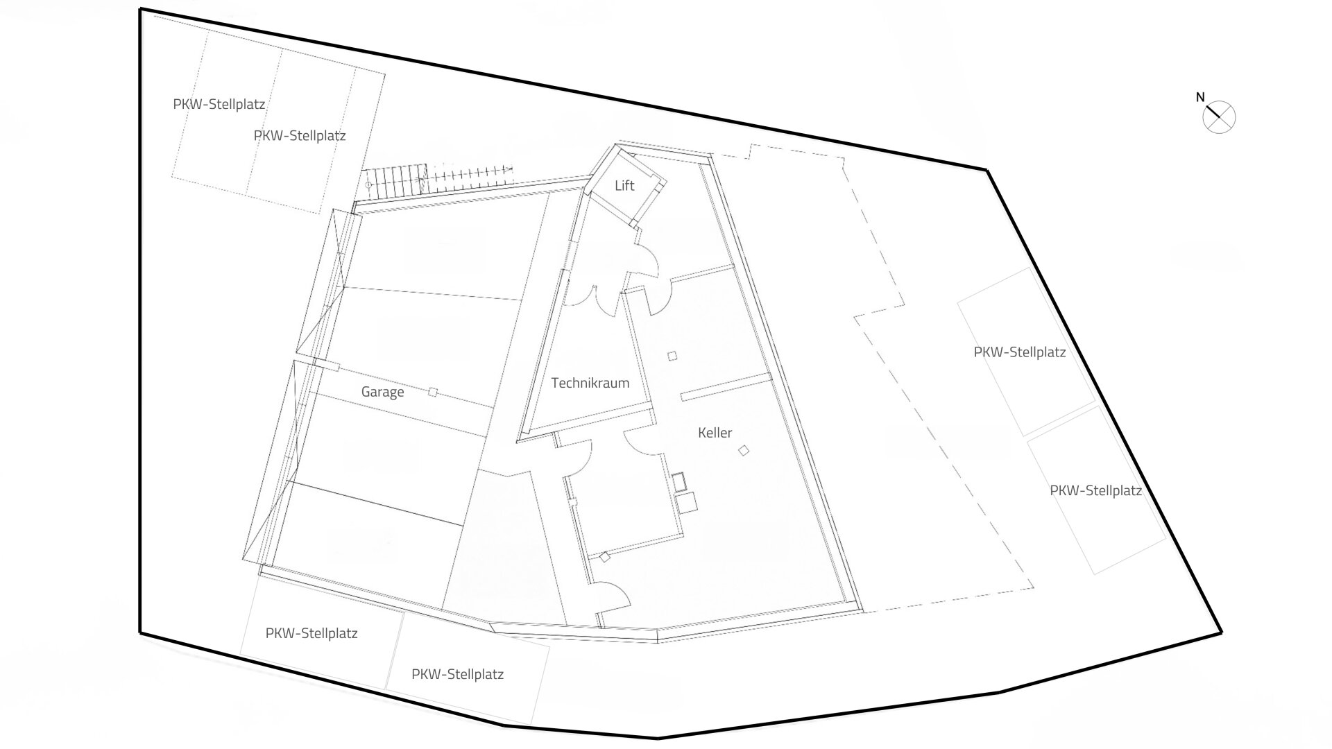
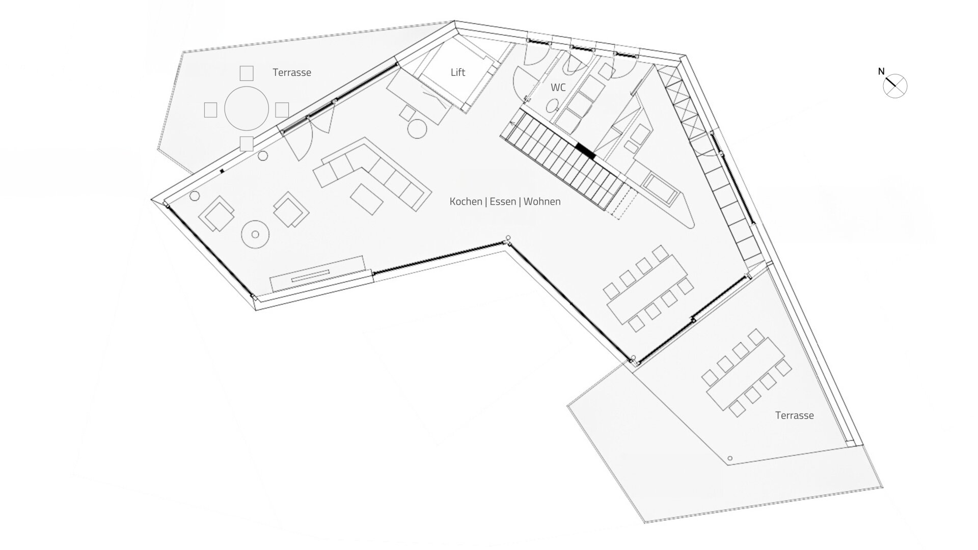
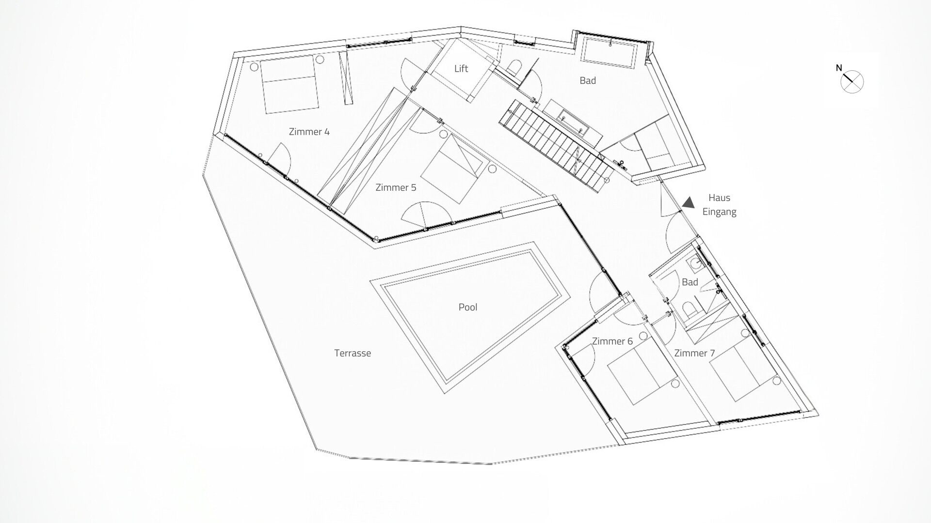
Nutzfläche: 231 m2
Gesamtfläche: 411 m2
Ziimmer insgesamt: 5
Schlafzimmer: 5
Badezimmer: 2
Nutzungsart: Wohnen
Provisionspflichtig: ja
Provision: 3% des Kaufpreises zzgl. 20% USt.
HWB: 38 kWh/(m²*a)
HWB Klasse: B
FGEE: 0.65
E-Ausweis Gültig Bis:: 20.12.2026
Energieausweis Art: Bedarf
Balkon/Terrassen - Fläche: 161
WC: 3
Abstellräume: 1
vollmöbliert
Neubau
Einbauküche
Personenaufzug
Gäste-WC
Parkett
Bad mit Fenster
Fußbodenheizung
Kabel/Sat-TV
Abstellraum
Freiplatz
vollerschlossen
Swimmingpool
Alarmanlage
DVBT-Empfang
Flachdach
Erdwärme





