Erweiterte Suche
Andere Eigenschaften
Suchagent aktivieren
Exklusive Anzeigen

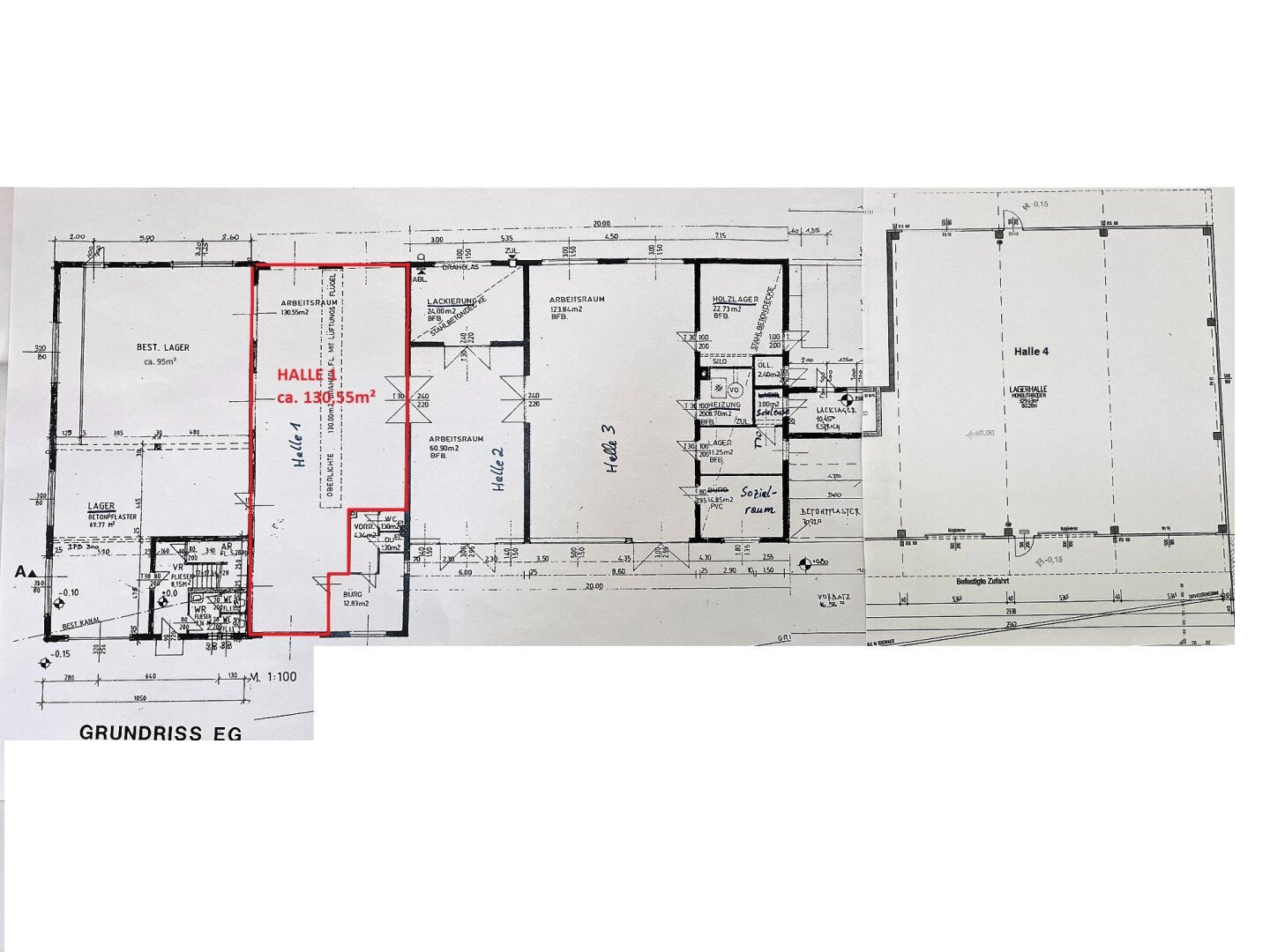
Produktions – oder Lagerhalle Nr. 1

,

zu Favoriten hinzufügen
teilen
Suchergebnisse

Objektbeschreibung

PRODUKTIONS- UND LAGERHALLEN (AUF WUNSCH SIND AUCH BÜROFLÄCHEN ZU MIETEN, FÜR VIELFÄLTIGE NUTZUNGSMÖGLICHKEITEN)

Die Miete für dieses Objekt beträgt 783,30 + 20% Ust= 939,96 + BK 80,–+10% Ust= 1.027,96 -GESAMTKOSTEN

Vermietet wird ein Gewerbeobjekt (HALLE 1). Man kann die Halle für verschiedenste Nutzungen verwenden.

Die Halle hat eine Größe von
Mehr lesen

Bezirk:
Bundesland:
PLZ: 2492
Land: Österreich
Objekt ID: 1365352
Nutzfläche: 0 m2
Gesamtfläche: 131 m2
Ziimmer insgesamt: 0
Schlafzimmer: 0
Badezimmer: 0
Miete/m2 €: 6
Miete (netto) €: 783.3
USt €: 164.66
Nutzungsart: Gewerbe
Provisionspflichtig: ja
Provision: 3 Bruttomonatsmieten zzgl. 20% USt.
Kaution: 4.000,00 €
Plan_Halle_1_Eggendorf
Plan_Halle_1_Eggendorf

Ähnliche Objekte

vergleichen
Halle_innen_17

Büroräumlichkeiten mit Teeküche

4
Schlafzimmer
Oktober 28, 2025

Amadeus Immobilien GmbH
Romana Vajk

Kontaktaufnahme









    • Preisinformation
      Miete netto783,30 €
      Ust.164,66 €

    Vergleichen