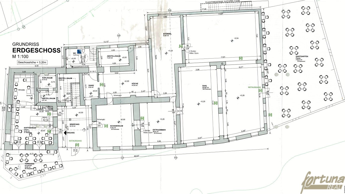
Objektbeschreibung
Willkommen in dieser einzigartigen Immobilie, die nicht nur durch ihre Lage besticht, sondern auch durch das besondere Flair des Dirndlhofes, einem beliebten Gasthof, der sich im Gebäude befindet. Der Dirndlhof zieht viele Gäste an und bietet eine hervorragende Möglichkeit, die lokale Gastronomie zu erleben.
Die Kombination aus Wohnraum und gastronomischem Angebot
Mehr lesen
Objekt ID: 1366139
Preis: € 1.450.000
Nutzfläche: 0 m2
Gesamtfläche: 1.196 m2
Ziimmer insgesamt: 0
Schlafzimmer: 0
Badezimmer: 4
Betriebskosten €: 1718
Nutzungsart: Wohnen
Provisionspflichtig: ja
Provision: 52.200,00 € inkl. 20% USt.
HWB: 34,20 kWh/(m²*a)
HWB Klasse: B
E-Ausweis Gültig Bis:: 23.07.2029
Energieausweis Art: Bedarf
Balkon/Terrassen - Fläche: 97
Gäste-WC
Altbau
Gas
Bad mit Fenster
Zentralheizung
Freiplatz
Massiv
Massivbauweise
Dielen
Flachdach
Mansarddach






