Erweiterte Suche
Andere Eigenschaften
Suchagent aktivieren
Exklusive Anzeigen

Repräsentative Büro mit Stellplatz- oder Praxisfläche in 1040 Wien

,

6 Zimmer
zu Favoriten hinzufügen
teilen
Suchergebnisse

Objektbeschreibung

REPRÄSENTATIVE BÜRO MIT STELLPLATZ – ODER PRAXISFLÄCHE IN 1040 WIEN

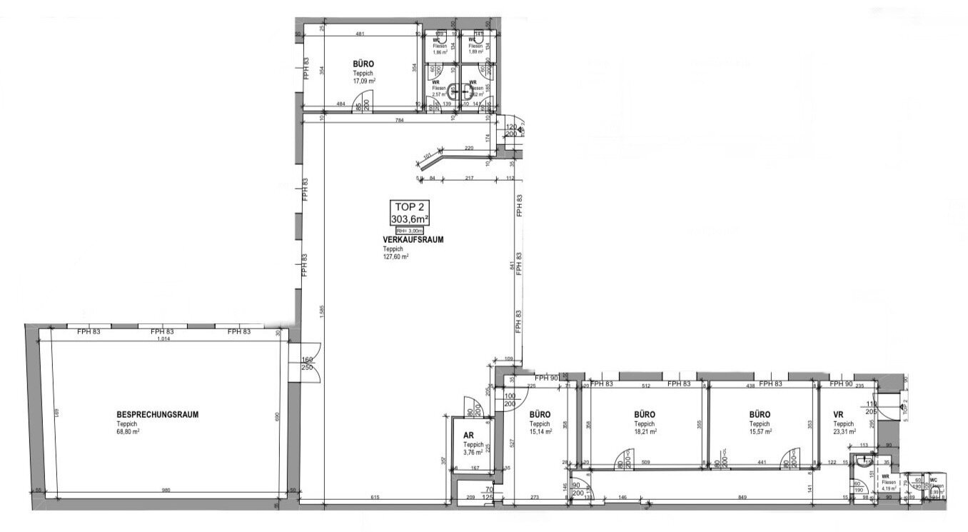
Diese rund 303,6 m² große Gewerbeeinheit zur Miete befindet sich im 1. Obergeschoss eines gepflegten Neubaus mit Personenaufzug und überzeugt durch ihre moderne Ausstattung, großzügige Raumaufteilung sowie eine ausgezeichnete Infrastruktur. Die Fläche eignet sich ideal als Büro, Ordination oder Praxis
Mehr lesen

Ort:
Bezirk:
Bundesland:
PLZ: 1040
Land: Österreich
Objekt ID: 1382328
Nutzfläche: 0 m2
Gesamtfläche: 0 m2
Ziimmer insgesamt: 6
Schlafzimmer: 6
Badezimmer: 0
Miete (netto) €: 3000
USt €: 721.44
Nutzungsart: Gewerbe
Provisionspflichtig: ja
Etage: 1. Etage
WC: 3
Abstellräume: 1
Neubau
Personenaufzug
Etagenheizung
Fliesen
Fernwärme

ADAMANT IMMOBILIEN GmbH
David Plishtiev

Kontaktaufnahme









    • Preisinformation
      Miete netto3.000,00 €
      Ust.721,44 €

    Vergleichen