Objektbeschreibung
SONDERAKTION – 5 Jahre zinsfrei: 35 % Anzahlung – Restkaufpreis in 5 Jahren
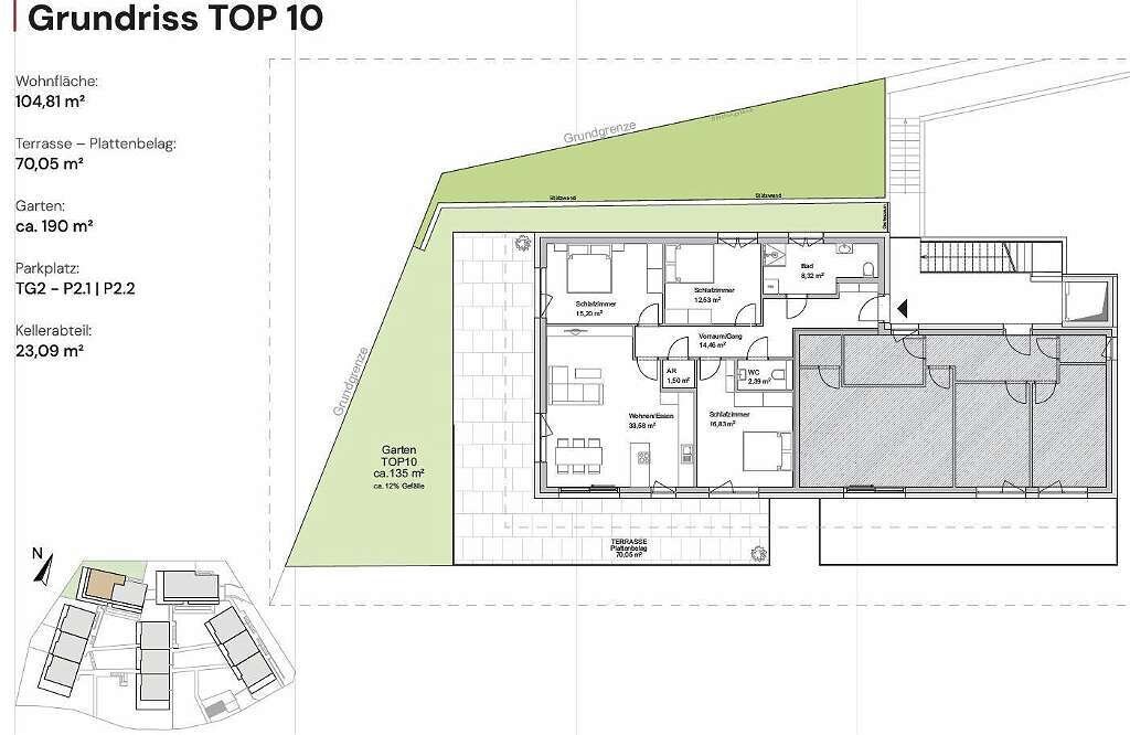
Möchten Sie gerne eine wunderschöne, mit allem Komfort ausgestattete Erstbezugswohnung mit großer Terrasse, dabei aber auch auf einen schönen Garten nicht verzichten? Dann sind Sie hier genau richtig:
Diese wunderschöne Gartenwohnung befindet sich nahe der Mariatroster Basilika
Mehr lesen
Objekt ID: 1388340
Preis: € 770.088
Nutzfläche: 105 m2
Gesamtfläche: 70 m2
Ziimmer insgesamt: 4
Schlafzimmer: 4
Badezimmer: 1
Nutzungsart: Wohnen
Provisionspflichtig: ja
Provision: 3% des Kaufpreises zzgl. 20% USt.
HWB: 48 kWh/(m²*a)
HWB Klasse: B
Energieausweis Art: Bedarf
Balkon/Terrassen - Fläche: 70
Etage: EG / letztes Geschoß
WC: 1
Abstellräume: 1
Neubau
Parkett
Fußbodenheizung
Massiv
Massivbauweise
Tiefgarage
Flachdach
Erdwärme
Ähnliche Objekte
Großzügige Eigentumswohnung in 8010 Graz
€ 295.000
5
Schlafzimmer
1
Badezimmer
100 m2
Größe
März 25, 2026
ENERGIEEFFIZIENT: Modernisierte 3-Zimmer-Woh...
€ 219.000
3
Schlafzimmer
1
Badezimmer
76 m2
Größe
März 25, 2026

















