Objektbeschreibung
Eine tolle Möglichkeit für Handwerker, Künstler oder all jene die viel Platz benötigen!
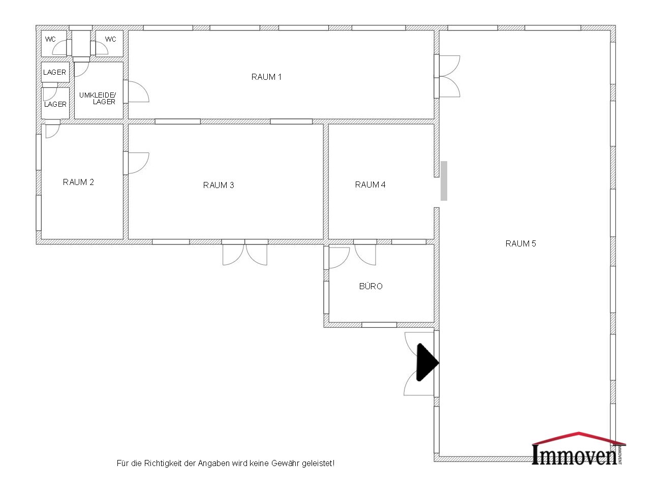
Die Räumlichkeiten (ca. 392 m²) einer ehemaligen Tischlerei bieten sich als Werkstatt geradezu an. Genauso können sich Künstler, Yogabetreibende oder jene, die einem handwerklichen Hobby nachgehen, angesprochen fühlen. Je nach Bedarf, ob für ein Atelier, einen
Mehr lesen
Dokumente
Objekt ID: 1390509
Nutzfläche: 0 m2
Gesamtfläche: 392 m2
Ziimmer insgesamt: 0
Schlafzimmer: 0
Badezimmer: 0
Miete/m2 €: 6.5
Nutzungsart: Gewerbe
Provisionspflichtig: ja
Provision: 3 Monatsmieten zzgl. 20% USt.
Kaution: 3 Bruttomonatsmieten
Beziehbar: nach Vereinbarung
Etage: EG
Freiplatz



