Objektbeschreibung
Eingebettet im grünsten Bezirk Wiens (Hietzing) in einer ruhigen Einbahnstraße besticht dieses ehemalige Fuhrwerkerhaus durch seinen Mix aus traditioneller Architektur – aber neu interpretiert – mit effizienten Grundrissen und großzügigen Freiflächen und einer sehr hochwertigen Ausstattung.
Die Immobilie in der Gallgasse 1130 Wien besticht durch die Ruhe und ihre zentralen Lage nahe dem Speißinger Platz.
Mehr lesen
Objekt ID: 1392078
Preis: € 499.000
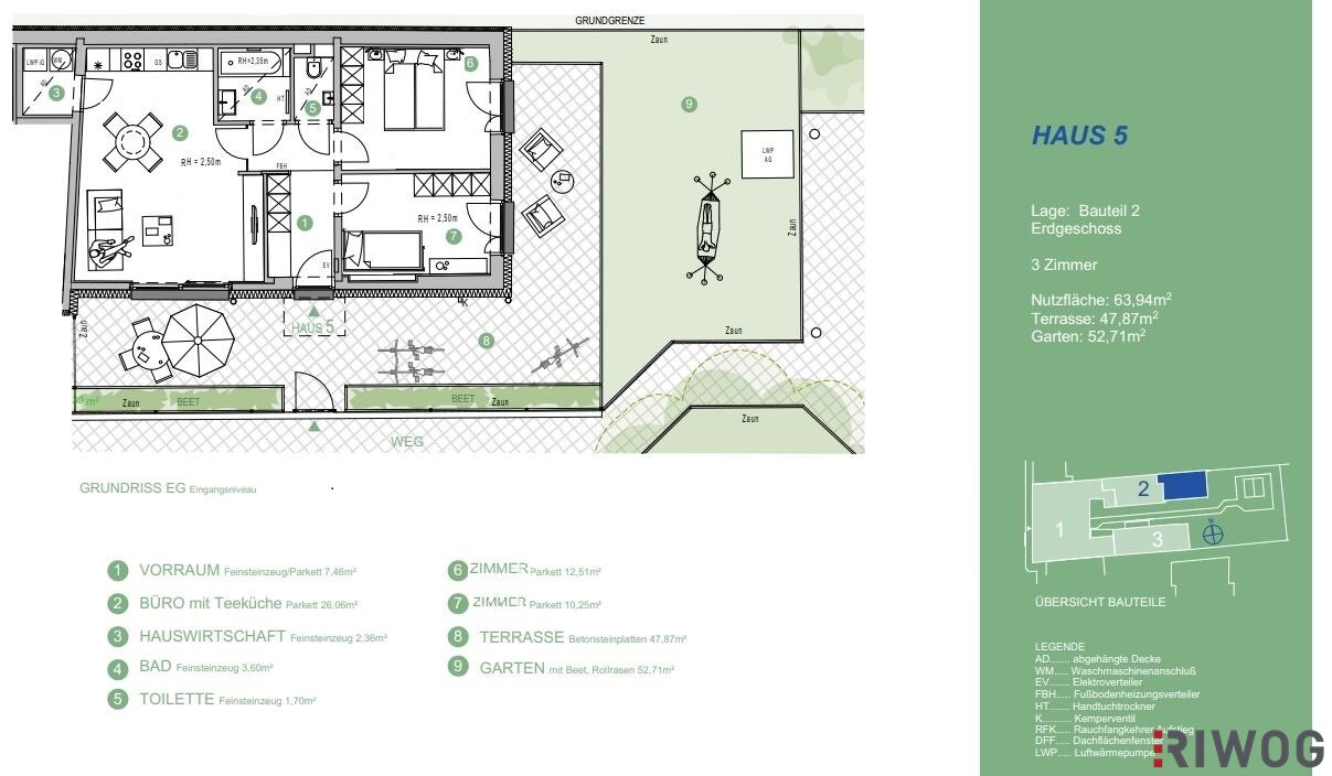
Nutzfläche: 64 m2
Gesamtfläche: 0 m2
Ziimmer insgesamt: 3
Schlafzimmer: 3
Badezimmer: 1
Nutzungsart: Wohnen
Provisionspflichtig: ja
Provision: 3% des Kaufpreises zzgl. 20% USt.
HWB: 43,99 kWh/(m²*a)
HWB Klasse: B
FGEE: 0.82
E-Ausweis Gültig Bis:: 15.10.2028
Energieausweis Art: Bedarf
Balkon/Terrassen - Fläche: 47
Beziehbar: sofort
Etage: EG
WC: 1
Abstellräume: 1
Neubau
Parkett
Badewanne
Fußbodenheizung
Fahrradraum
rollstuhlgerecht
Klimaanlage
Luft-Wärmepumpe
Gartennutzung
seniorengerecht
Ähnliche Objekte
Eigengarten I 3 Zimmer I Erstbezug – A...
€ 711.000
3
Schlafzimmer
2
Badezimmer
85 m2
Größe
Februar 25, 2026
Herrliche Dachwohnung Nähe Gersthofer Straße...
€ 729.000
3
Schlafzimmer
2
Badezimmer
84 m2
Größe
Februar 25, 2026
Wohnen Nähe Pötzleinsdorfer Schloßpark
€ 903.000
3
Schlafzimmer
2
Badezimmer
101 m2
Größe
Februar 25, 2026

























