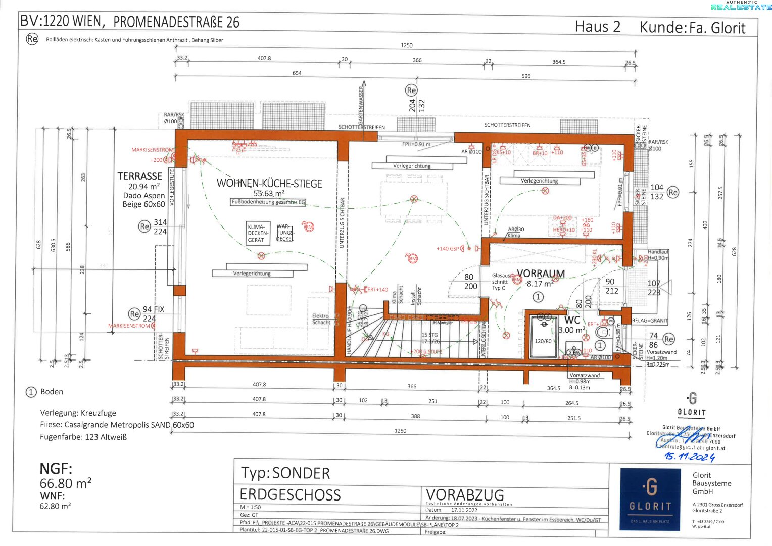
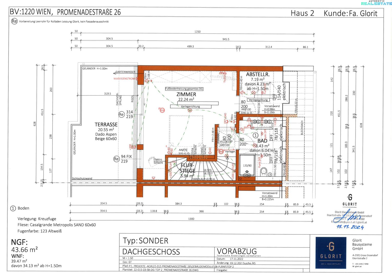
Objektbeschreibung
Dieses moderne Doppelhaus, erbaut im Jahr 2023 von Glorit in hochwertiger Holzriegel-Fertigteilbauweise, überzeugt durch durchdachte Raumaufteilung, erstklassige Ausstattung und zeitgemäße Haustechnik. Auf rund 180 m² Wohnfläche verteilt sich das Haus über drei Etagen exkl. Keller und bietet drei elegante Badezimmer – jeweils eines pro Stockwerk – sowie insgesamt vier Schlafzimmer. Im Obergeschoss befinden sich drei davon, während das Highlight
Mehr lesen
Objekt ID: 1402268
Preis: € 1.295.000
Nutzfläche: 178 m2
Gesamtfläche: 356 m2
Ziimmer insgesamt: 5
Schlafzimmer: 5
Badezimmer: 3
Nutzungsart: Wohnen
Provisionspflichtig: ja
Provision: 46.620,00 € inkl. 20% USt.
HWB: 40,50 kWh/(m²*a)
HWB Klasse: B
FGEE: 0.75
E-Ausweis Gültig Bis:: 18.12.2032
Energieausweis Art: Bedarf
Balkon/Terrassen - Fläche: 41
WC: 3
Abstellräume: 1
Neubau
Gäste-WC
Parkett
Bad mit Fenster
Fußbodenheizung
offene Küche
Abstellraum
Offene Küche
Rollläden
Klimaanlage
Freiplatz
Luft-Wärmepumpe
Wasch-/Trockenraum
Gartennutzung
schlüsselfertig mit Keller
Fertigteile
Fertigteil-Bauweise
Pultdach
Niedrigenergiehaus
Ähnliche Objekte
Provisionsfrei – Modernes Einfamilienh...
€ 945.000
7
Schlafzimmer
1
Badezimmer
198 m2
Größe
Oktober 26, 2025
Elegantes Traumhaus in 1130 Wien: 520 m² Lux...
€ 5.990.000
7
Schlafzimmer
6
Badezimmer
520 m2
Größe
Oktober 26, 2025
(Reserviert) Exklusives Wohnen im Grünen ...
€ 485.000
4
Schlafzimmer
1
Badezimmer
91 m2
Größe
Oktober 26, 2025









