Objektbeschreibung
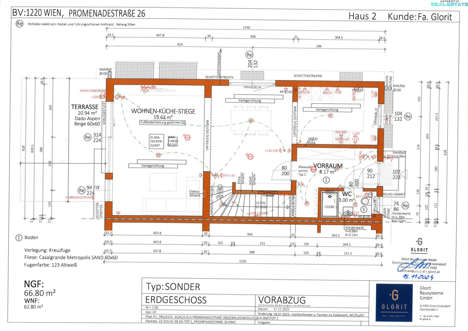
Dieses moderne Doppelhaus, erbaut im Jahr 2023 von Glorit in hochwertiger Holzriegel-Fertigteilbauweise, überzeugt durch durchdachte Raumaufteilung, erstklassige Ausstattung und zeitgemäße Haustechnik. Auf rund 180 m² Wohnfläche verteilt sich das Haus über drei Etagen exkl. Keller und bietet drei elegante Badezimmer – jeweils eines pro Stockwerk – sowie insgesamt vier Schlafzimmer. Im Obergeschoss befinden sich drei davon, während das Highlight
Mehr lesen
Objekt ID: 1402268
Preis: € 1.295.000
Nutzfläche: 178 m2
Gesamtfläche: 356 m2
Ziimmer insgesamt: 5
Schlafzimmer: 5
Badezimmer: 3
Nutzungsart: Wohnen
Provisionspflichtig: ja
Provision: 46.620,00 € inkl. 20% USt.
HWB: 40,50 kWh/(m²*a)
HWB Klasse: B
FGEE: 0.75
E-Ausweis Gültig Bis:: 18.12.2032
Energieausweis Art: Bedarf
Balkon/Terrassen - Fläche: 41
WC: 3
Abstellräume: 1
Neubau
Gäste-WC
Parkett
Bad mit Fenster
Fußbodenheizung
offene Küche
Abstellraum
Offene Küche
Rollläden
Klimaanlage
Freiplatz
Luft-Wärmepumpe
Wasch-/Trockenraum
Gartennutzung
schlüsselfertig mit Keller
Fertigteile
Fertigteil-Bauweise
Pultdach
Niedrigenergiehaus
Ähnliche Objekte
Fertigstellungsaktionspreis – Sofort beziehb...
€ 2.398.000
6
Schlafzimmer
4
Badezimmer
235 m2
Größe
Januar 27, 2026









