Objektbeschreibung
In einer ruhigen und exklusiven Gegend von Vodice, nur wenige Fahrminuten vom Stadtzentrum und dem beliebten Strand Vruje entfernt, befindet sich diese luxuriöse Villa, die modernes Design, Privatsphäre und höchste Bauqualität vereint. Die Immobilie wird nach höchsten Standards errichtet – mit hochwertigen Materialien und moderner Ausstattung. Ideal für alle, die
Mehr lesen
Objekt ID: 1426964
Preis: € 899.000
Nutzfläche: 0 m2
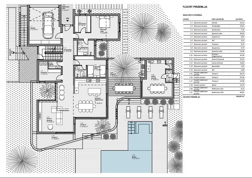
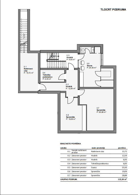
Gesamtfläche: 1.100 m2
Ziimmer insgesamt: 9
Schlafzimmer: 9
Badezimmer: 5
Nutzungsart: Wohnen
Provisionspflichtig: ja
WC: 1





