Objektbeschreibung
In herrlicher Grünruhelage direkt am Wienerwald erwartet Sie dieses charmante Einfamilienhaus – ideal für Familien, die naturnah leben und gleichzeitig stadtnah wohnen möchten. Die Wienerwaldstadt Purkersdorf punktet mit bester Infrastruktur: Kindergarten, Volksschule, Gymnasium, Ärzte, Einkaufsmöglichkeiten und das beliebte Wienerwaldbad befinden sich in kurzer Entfernung. Die ruhige, südwestlich ausgerichtete Lage am
Mehr lesen
Objekt ID: 1428628
Preis: € 790.000
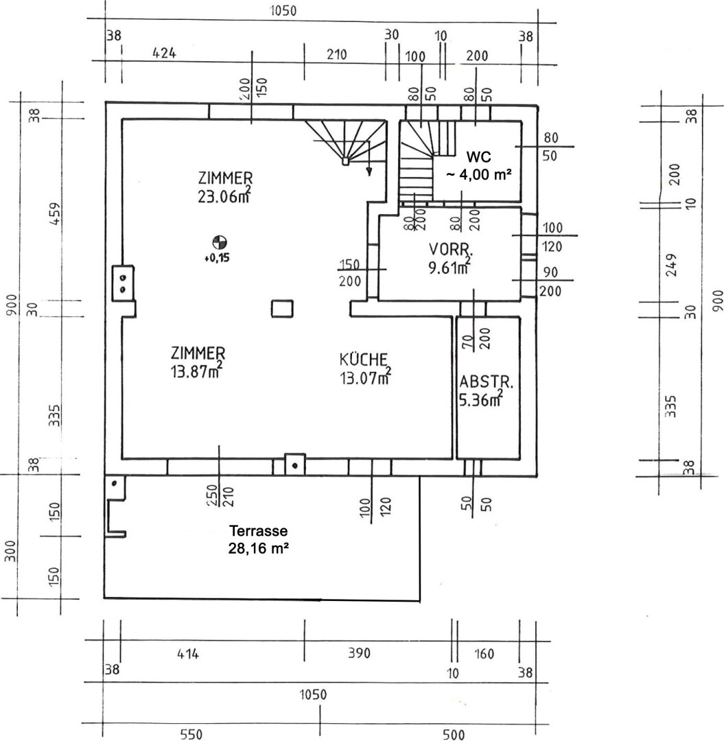
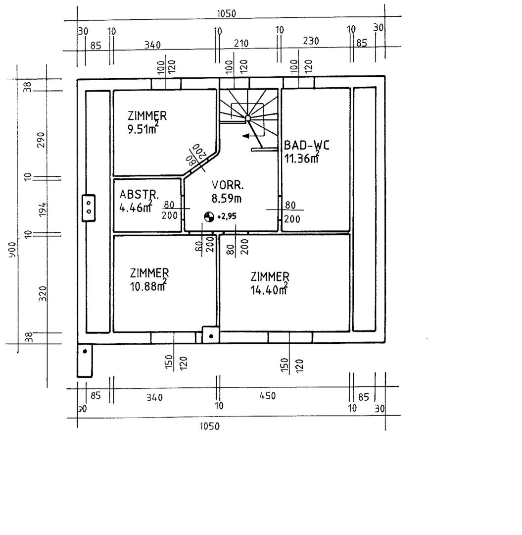
Nutzfläche: 128 m2
Gesamtfläche: 1.470 m2
Ziimmer insgesamt: 4
Schlafzimmer: 4
Badezimmer: 1
Nutzungsart: Wohnen
Provisionspflichtig: ja
Provision: 3% des Kaufpreises zzgl. 20% USt.
HWB: 106 kWh/(m²*a)
HWB Klasse: D
FGEE: 1.27
E-Ausweis Gültig Bis:: 28.04.2035
Energieausweis Art: Bedarf
Balkon/Terrassen - Fläche: 28
Beziehbar: n.V.
Abstellräume: 2
Neubau
Einbauküche
Gäste-WC
Bad mit Fenster
Kabel/Sat-TV
Kamin
Zentralheizung
offene Küche
Offene Küche
Freiplatz
Massiv
Massivbauweise
vollerschlossen
Swimmingpool
Sauna
Holz-Hackschnitzel
Satteldach
Terrakotta
Ähnliche Objekte
Repräsentative Villa mit Pool und Wellnessbe...
€ 1.190.000
11
Schlafzimmer
3
Badezimmer
392 m2
Größe
November 24, 2025
Eckreihenhaus mit Einfamilienhauscharakter i...
€ 745.000
6
Schlafzimmer
1
Badezimmer
154 m2
Größe
November 18, 2025








