Objektbeschreibung
Diese außergewöhnliche Stadtvilla aus dem Jahr 1901 zählt zu den architektonischen Highlights im Zentrum von Knittelfeld. Mit ihrer eindrucksvollen Fassade, dem stilprägenden Dachgiebel, der gegliederten Fensterstruktur und den liebevoll erhaltenen Details verkörpert sie den eleganten Stil der Jahrhundertwende – eine Epoche, in der Ästhetik, Raumgefühl und Handwerkskunst auf höchstem Niveau
Mehr lesen
Objekt ID: 1428669
Preis: € 569.000
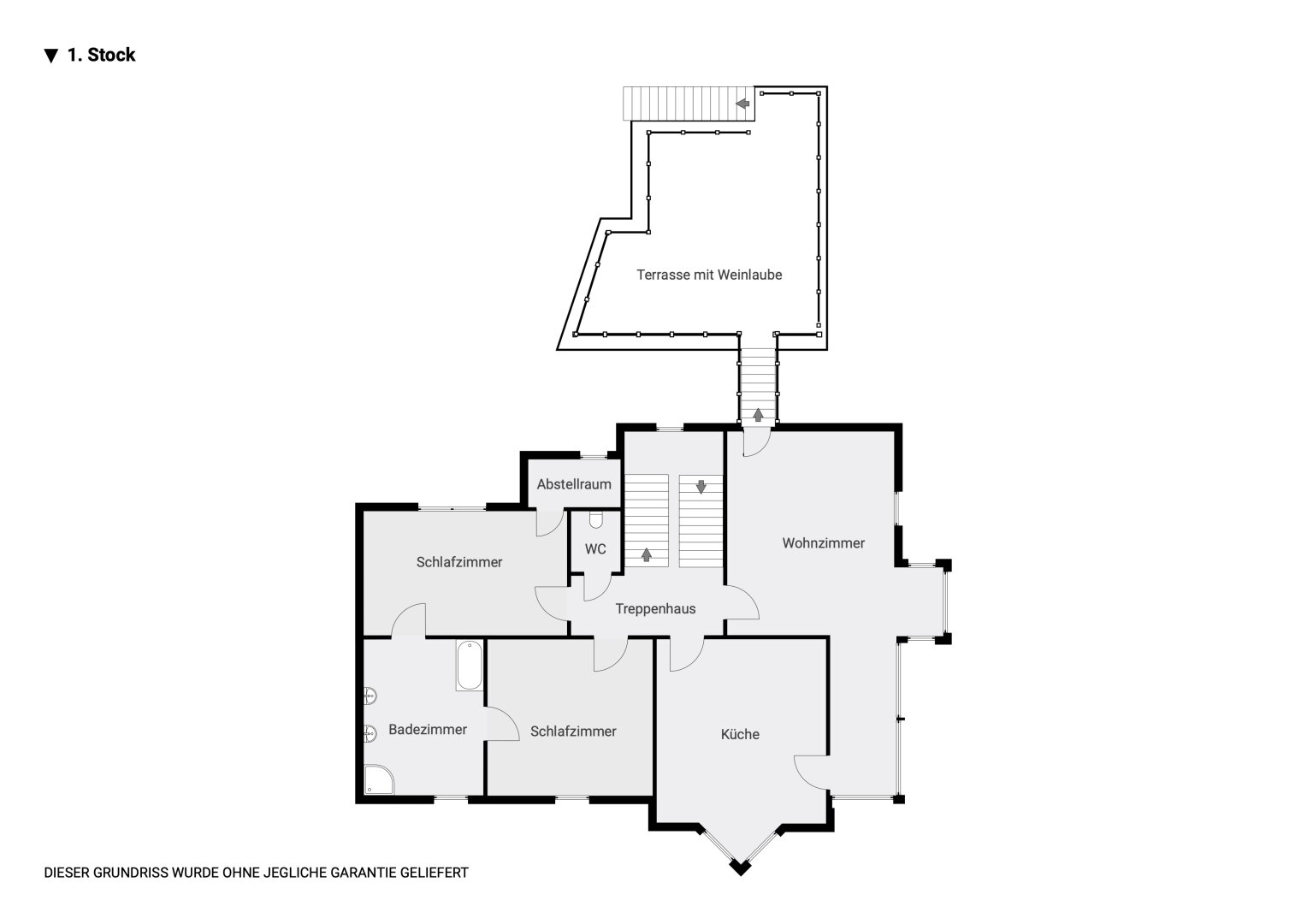
Nutzfläche: 363 m2
Gesamtfläche: 1.021 m2
Ziimmer insgesamt: 11
Schlafzimmer: 11
Badezimmer: 2
Betriebskosten €: 385
Nutzungsart: Wohnen
Provisionspflichtig: ja
Provision: 3% des Kaufpreises zzgl. 20% USt.
Balkon/Terrassen - Fläche: 30
WC: 3
Einbauküche
Gäste-WC
Bad mit Fenster
Freiplatz
Massiv
Massivbauweise
Fernheizung
Swimmingpool
Alarmanlage
Sauna
Ähnliche Objekte
Bungalow in Knittelfeld – Stadtrandlag...
€ 280.000
4
Schlafzimmer
1
Badezimmer
102 m2
Größe
April 19, 2026

























































