Objektbeschreibung
COUNTRYSIDE – MODERNES WOHNEN AM LAND BEI BESTER VERKEHRSANBINDUNG
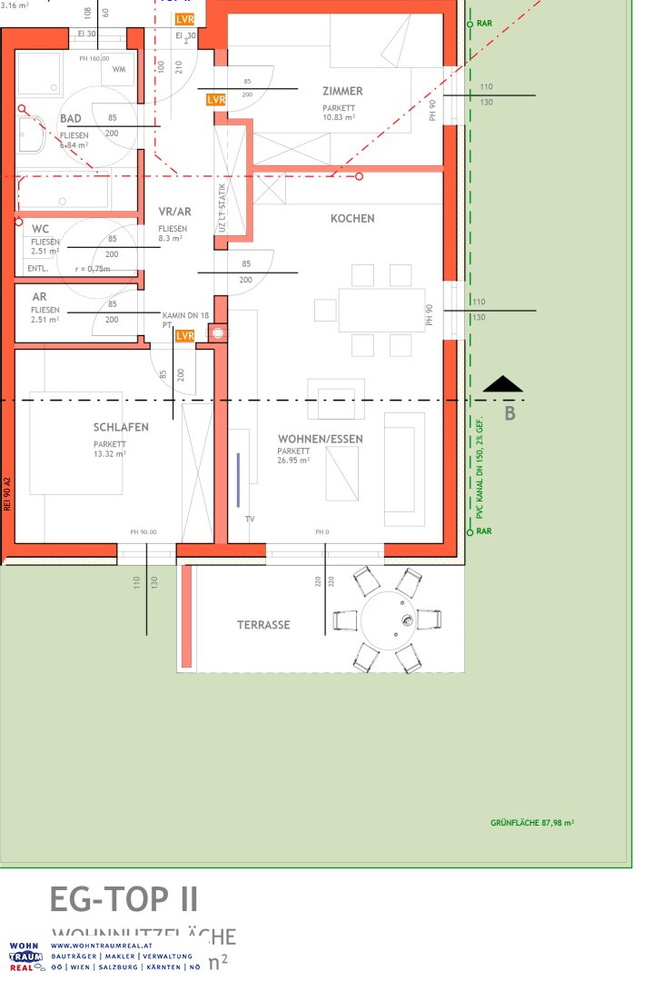
Mit _Countryside_ entsteht in der Ortschaft Gries (Gemeinde Pram) ein mehrteiliges Bauprojekt, bestehend aus einem Wohngebäude mit 4 Wohnungen. Modernes und energieeffizientes Wohnen wird hier kombiniert mit dem Traum vom eigenen Garten in ländlicher Idylle. Dabei verspricht die nachhaltige Bauweise langlebige
Mehr lesen
Dokumente
Objekt ID: 1428923
Preis: € 249.000
Nutzfläche: 71 m2
Gesamtfläche: 0 m2
Ziimmer insgesamt: 3
Schlafzimmer: 3
Badezimmer: 1
Nutzungsart: Wohnen
Provisionspflichtig: ja
Provision: 3% des Kaufpreises zzgl. 20% USt.
HWB: 40 kWh/(m²*a)
HWB Klasse: B
FGEE: 0.69
Energieausweis Art: Bedarf
Balkon/Terrassen - Fläche: 10
Beziehbar: Ende 2023
WC: 1
Abstellräume: 1
Neubau
Parkett
Bad mit Fenster
Fußbodenheizung
Freiplatz
Luft-Wärmepumpe
Massiv
Massivbauweise
schlüsselfertig mit Bodenplatte
vollerschlossen
Flachdach
Ähnliche Objekte
**WEIHNACHTSAKTION** Neubau-Wohnung mit Balk...
€ 239.000
3
Schlafzimmer
1
Badezimmer
71 m2
Größe
Dezember 13, 2025
Pram bei Ried/I -Traumhafte Erstbezugswohnun...
€ 249.000
3
Schlafzimmer
1
Badezimmer
72 m2
Größe
Oktober 31, 2025






