Objektbeschreibung
Wohnbauprojekt „K5“- bezugsfertig
Nahe dem Mühlwasser in einer ruhigen Seitengasse, befindet sich das Neubauprojekt „K5“ mit insgesamt 30 Eigentumswohnungen in Bau. Die Einheiten verfügen über 2 bis 4 Zimmer und Wohnflächen zwischen ca. 38 und 101 m² – jeweils mit Balkon, Terrasse oder Eigengarten.
Das Projekt ist klimaaktiv-zertifiziert und setzt auf
Mehr lesen
Objekt ID: 1429115
Preis: € 475.300
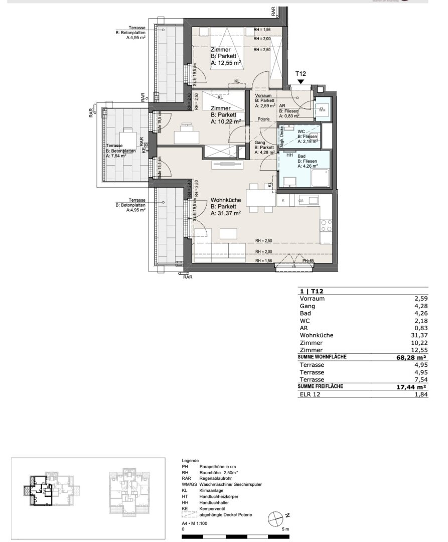
Nutzfläche: 68 m2
Gesamtfläche: 86 m2
Ziimmer insgesamt: 3
Schlafzimmer: 3
Badezimmer: 1
Miete/m2 €: 5544.8
Nutzungsart: Wohnen
Provisionspflichtig: ja
Provision: 3% des Kaufpreises zzgl. 20% USt.
HWB: 29,70 kWh/(m²*a)
HWB Klasse: B
FGEE: 0.6
Energieausweis Art: Bedarf
Balkon/Terrassen - Fläche: 17
WC: 1
Abstellräume: 1
barrierefrei
Neubau
Personenaufzug
Parkett
Dusche
Fußbodenheizung
offene Küche
Abstellraum
Offene Küche
Klimaanlage
Luft-Wärmepumpe
Tiefgarage
Ähnliche Objekte
Smart wohnen: durchdachte knapp 30 m² für de...
€ 100.000
2
Schlafzimmer
1
Badezimmer
30 m2
Größe
Februar 25, 2026
Hundertwasser lässt grüßen | DG-ERSTBEZUG mi...
€ 499.000
2
Schlafzimmer
1
Badezimmer
41 m2
Größe
Februar 25, 2026
Wohnen zwischen Stadtpark und Prater | DG-ER...
€ 649.000
2
Schlafzimmer
1
Badezimmer
52 m2
Größe
Februar 25, 2026









