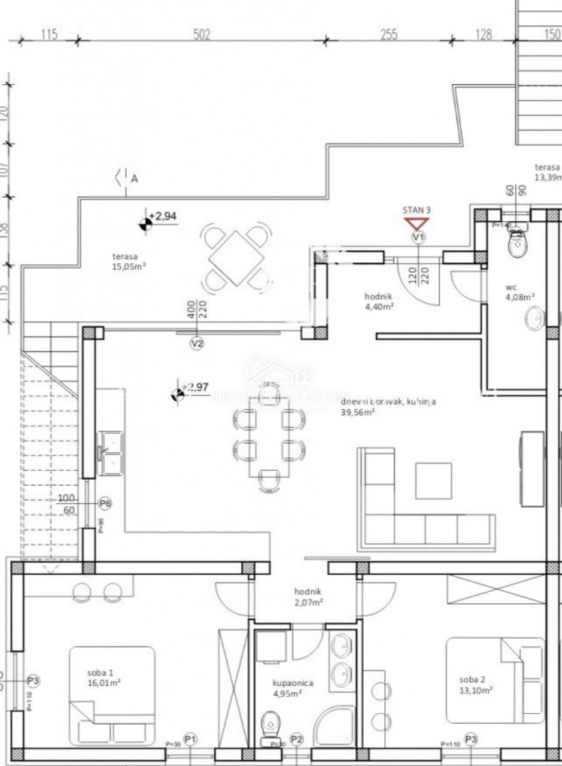
Objektbeschreibung
Eine großzügige Dachterrasse mit Meerblick und eine neue, moderne Wohnung in einem Wohngebiet nahe Poreč werden anspruchsvolle Käufer, die Luxus, Ruhe und einen Ort für einen perfekten Urlaub suchen, begeistern.
Die Wohnung befindet sich in einem hochwertigen Designer-Neubau mit vier Wohneinheiten.
Sie besteht aus einem offenen Wohn-, Ess- und
Mehr lesen
Objekt ID: 1431387
Preis: € 350.000
Nutzfläche: 0 m2
Gesamtfläche: 0 m2
Ziimmer insgesamt: 3
Schlafzimmer: 3
Badezimmer: 1
Nutzungsart: Wohnen
Provisionspflichtig: ja
WC: 1























