Objektbeschreibung
Objekt und Lage:
Die moderne und sehr gepflegte Büro-/Wohn-/Liegenschaft befindet sich in bester, zentraler Lage und ist nur wenige Gehminuten vom Hauptbahnhof entfernt.
Sämtliche Nahversorger für den täglichen Bedarf sind in der Umgebung vorhanden und ideal zu erreichen.
In unmittelbarer Nachbarschaft befinden sich ein Einrichtungshaus und eine Fachmarktzeile entlang der
Mehr lesen
Objekt ID: 1431610
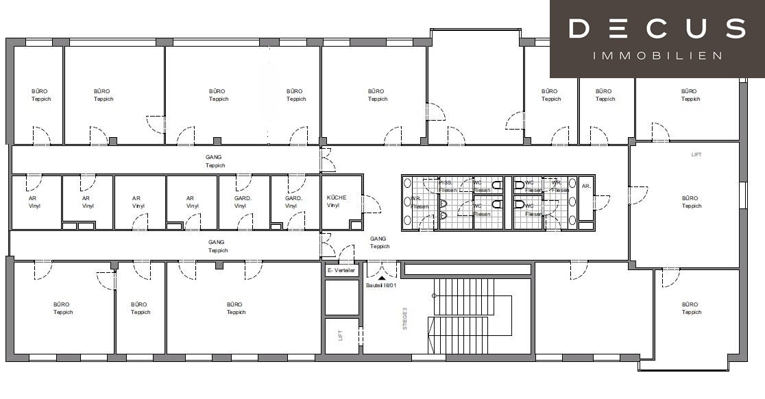
Nutzfläche: 0 m2
Gesamtfläche: 543 m2
Ziimmer insgesamt: 0
Schlafzimmer: 0
Badezimmer: 0
Miete/m2 €: 8.5
Miete (netto) €: 4614.57
Betriebskosten €: 2839.31
Nutzungsart: Gewerbe
HWB: 84,90 kWh/(m²*a)
FGEE: 1.25
Energieausweis Art: Bedarf
Etage: 1. Etage
Neubau





















