Objektbeschreibung
WILLKOMMEN IN IHREM NEUEN ZUHAUSE IN WIENER NEUSTADT!
Es ist der Moment, um alte Geschichten hinter sich zu lassen und mit frischem Mut und Optimismus in die Zukunft zu blicken:
Dieser neue Wohnkomplex verbindet modernes Wohnen mit einer naturnahen Umgebung – perfekt für junge Familien, Paare und Einzelpersonen, die Wert
Mehr lesen
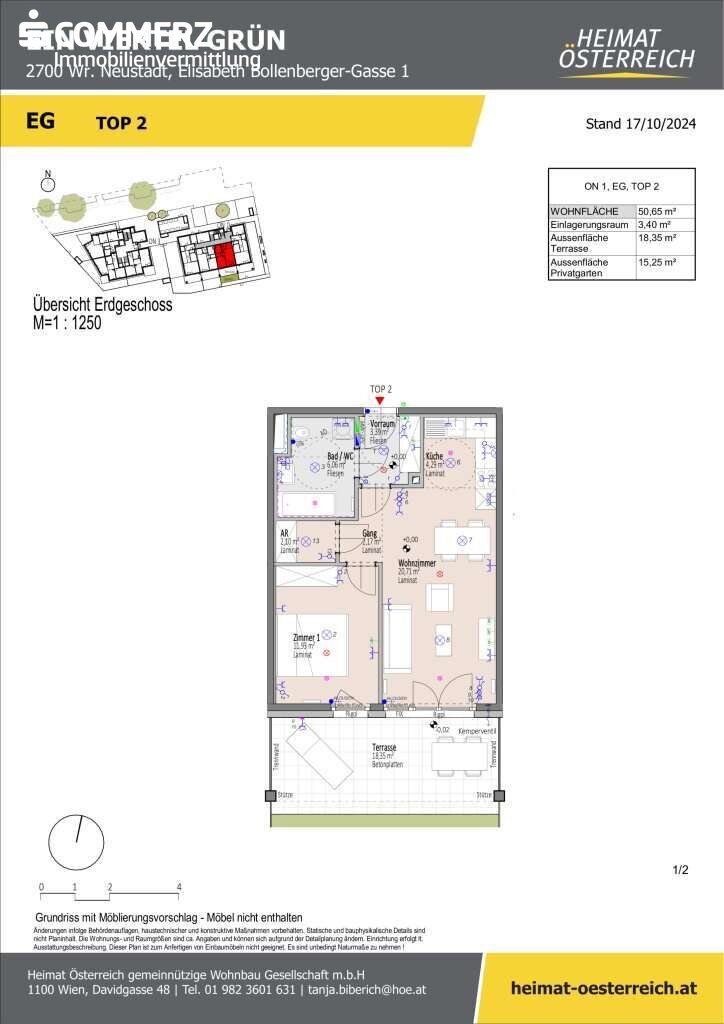
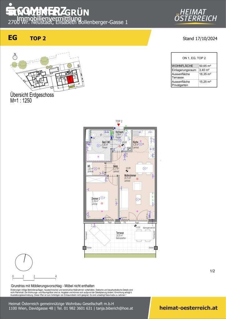
Objekt ID: 1437225
Preis: € 189.671.03
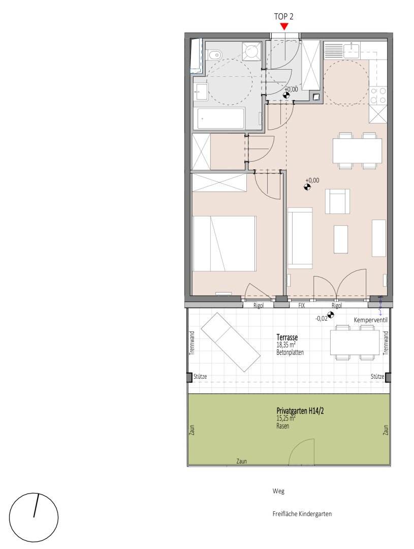
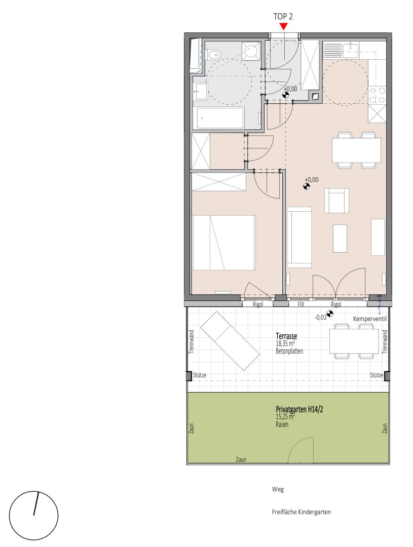
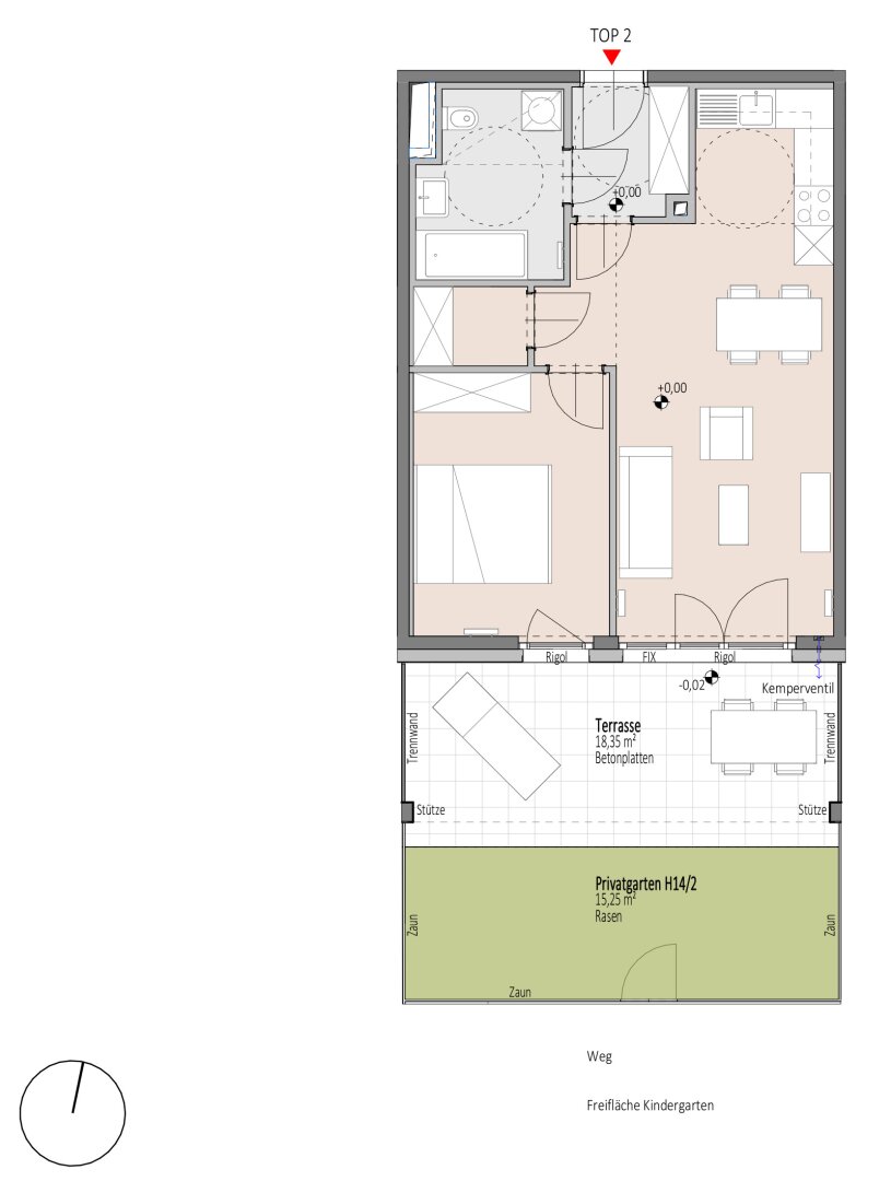
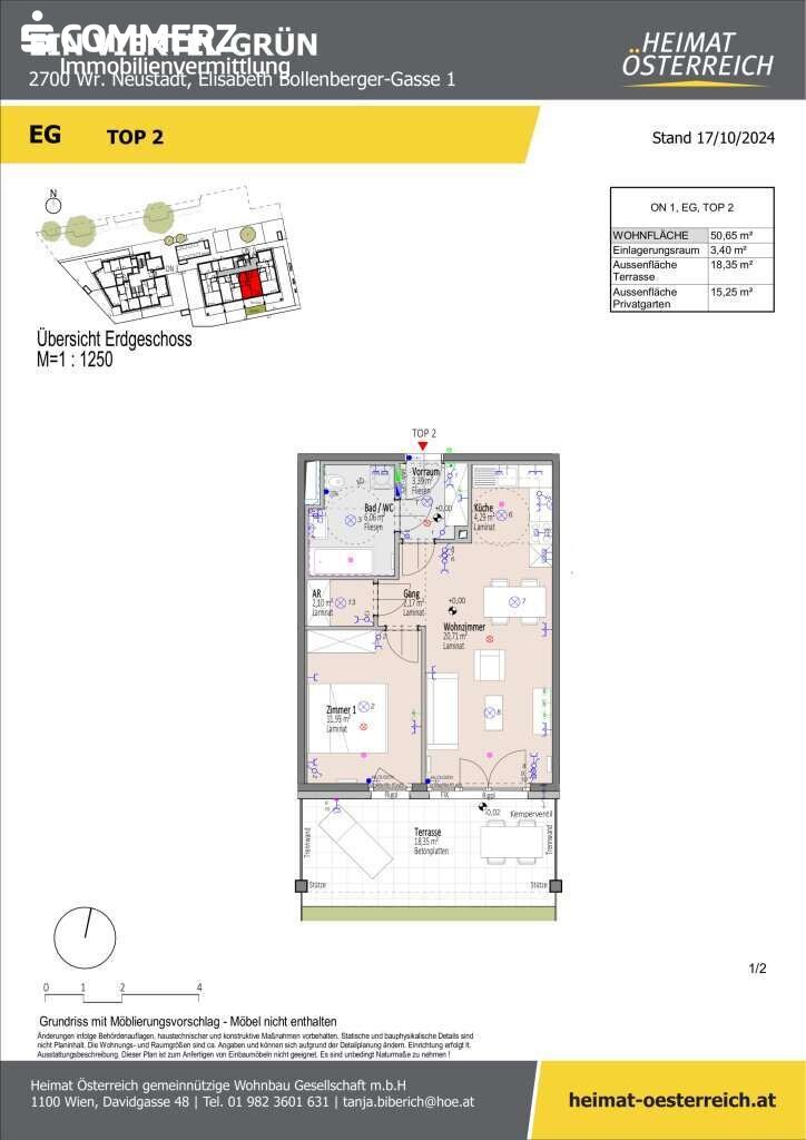
Nutzfläche: 51 m2
Gesamtfläche: 0 m2
Ziimmer insgesamt: 2
Schlafzimmer: 2
Badezimmer: 1
Betriebskosten €: 415.18
Nutzungsart: Wohnen
Provisionspflichtig: ja
Provision: Provisionsfrei für den Käufer
HWB: 23,50 kWh/(m²*a)
HWB Klasse: A
FGEE: 0.53
Energieausweis Art: Bedarf
Balkon/Terrassen - Fläche: 18
Beziehbar: Frühjahr ´26
Etage: EG / Erdgeschoß
WC: 1
Abstellräume: 1
Neubau
Personenaufzug
Badewanne
Fahrradraum
Laminat
Fernheizung
Tiefgarage
Flachdach
Erdwärme
Ähnliche Objekte
Domblick – helle 3Z-Wohnung auf ca. 82m² Wfl...
€ 255.000
3
Schlafzimmer
1
Badezimmer
82 m2
Größe
Mai 9, 2026









