Objektbeschreibung
Zum Verkauf kommt eine echte Rarität, wie sie in Baden nur ganz selten auf den Markt kommt.
Die gepflegte, großzügige Einfamilienvilla mit prächtigem Garten liegt in zentraler Badener Bestlage direkt am Mitterberg (!).
Das Casino und der Grüne Markt sind bequem in wenigen Gehminuten fußläufig erreichbar.
Aufgrund der exklusiven Lage verfügt die
Mehr lesen
Objekt ID: 1452681
Preis: € 2.690.000
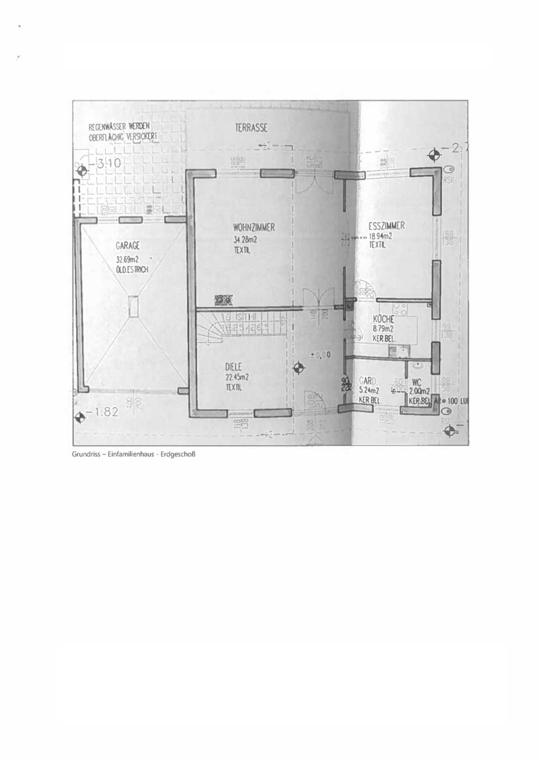
Nutzfläche: 288 m2
Gesamtfläche: 410 m2
Ziimmer insgesamt: 7
Schlafzimmer: 7
Badezimmer: 3
Nutzungsart: Wohnen
Provisionspflichtig: ja
Provision: 3% des Kaufpreises zzgl. 20% USt.
Anzahl Balkone: 1
WC: 4
Abstellräume: 2
Balkon
Einbauküche
Bidet
Fußbodenheizung
Abstellraum
Garage
Sauna
Wintergarten
Solar
Ähnliche Objekte
Jagdvilla aus 1910 – vollrenoviert ...
€ 1.290.000
8
Schlafzimmer
2
Badezimmer
209 m2
Größe
Dezember 25, 2025
Erstklassige Lage in Baden: Modernes Einfami...
€ 1.379.000
8
Schlafzimmer
2
Badezimmer
250 m2
Größe
Dezember 25, 2025
Mehr Raum als Weihnachtsstress – 7 Zim...
€ 440.000
7
Schlafzimmer
2
Badezimmer
186 m2
Größe
Dezember 19, 2025

















