Objektbeschreibung
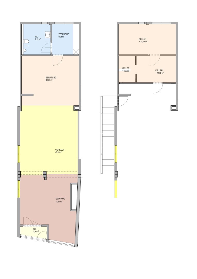
Dieses vielseitige Geschäftslokal in zentraler Lage von Korneuburg eignet sich perfekt für Büro, Praxis, Handel oder Studio. Mit einer Fläche von ca. 130 m², großen Schaufenstern und zwei eigenen Parkplätzen bietet die Immobilie beste Voraussetzungen für Ihren Geschäftserfolg (unmöbliert).
Highlights:
* 130 m² Geschäftsfläche im Erdgeschoss
* 40
Mehr lesen
Adresse: Wiener Straße
Ort: Korneuburg
Bezirk: 2100
Bundesland: Niederösterreich
PLZ: 2100
Land: Österreich
Objekt ID: 1466246
Preis: € 250.000
Nutzfläche: 0 m2
Gesamtfläche: 130 m2
Ziimmer insgesamt: 0
Schlafzimmer: 0
Badezimmer: 0
Nutzungsart: Gewerbe
Provisionspflichtig: ja
Provision: 3% des Kaufpreises zzgl. 20% USt.
HWB: 67,80 kWh/(m²*a)
HWB Klasse: C
FGEE: 1.4
Energieausweis Art: Bedarf
Etage: EG
barrierefrei
Neubau
Einbauküche
Klimaanlage
Freiplatz
Stein
Pissoir
Alternativ
Ähnliche Objekte
ORDINATION, BÜRO ODER GESCHÄFTSLOKAL –...
€ 245.000
2
Schlafzimmer
1
Badezimmer
74 m2
Größe
März 30, 2026










