Objektbeschreibung
NEUE STANDARDS IN DER MODERNEN WOHNRAUMSCHAFFUNG
Ein völlig neues Wohnkonzept erwartet Sie in Leobersdorf am Marktplatz. Erfahren Sie hier, was es so besonders macht.
VORZEIGEPROJEKT
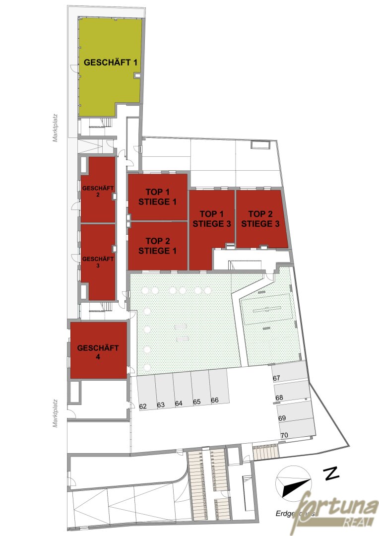
Verteilt auf 5 Stockwerke entstehen insgesamt 47 Eigentumswohnungen. Davon werden 10 als kompakte und leistbare Wohnungen für Studenten, Singles und junge Paare geschaffen. Als
Mehr lesen
Dokumente
Adresse: Marktplatz 3a
Ort: Leobersdorf
Bezirk: 2544
Bundesland: Niederösterreich
PLZ: 2544
Land: Österreich
Objekt ID: 1467829
Preis: € 264.395.86
Nutzfläche: 61 m2
Gesamtfläche: 0 m2
Ziimmer insgesamt: 2
Schlafzimmer: 2
Badezimmer: 0
Nutzungsart: Wohnen
Provisionspflichtig: ja
Provision: Provisionsfrei
HWB: 19,70 kWh/(m²*a)
HWB Klasse: A
FGEE: 0.64
Energieausweis Art: Bedarf
Balkon/Terrassen - Fläche: 12
Beziehbar: sofort
Etage: 1. Etage
barrierefrei
Neubau
Ähnliche Objekte
Neubau-Penthouse-Maisonette zum Nettokaufpre...
€ 886.910.24
4
Schlafzimmer
196 m2
Größe
September 9, 2025
Zentral gelegene Neubauwohnung in Leobersdor...
€ 291.240.09
2
Schlafzimmer
66 m2
Größe
September 9, 2025












