Objektbeschreibung
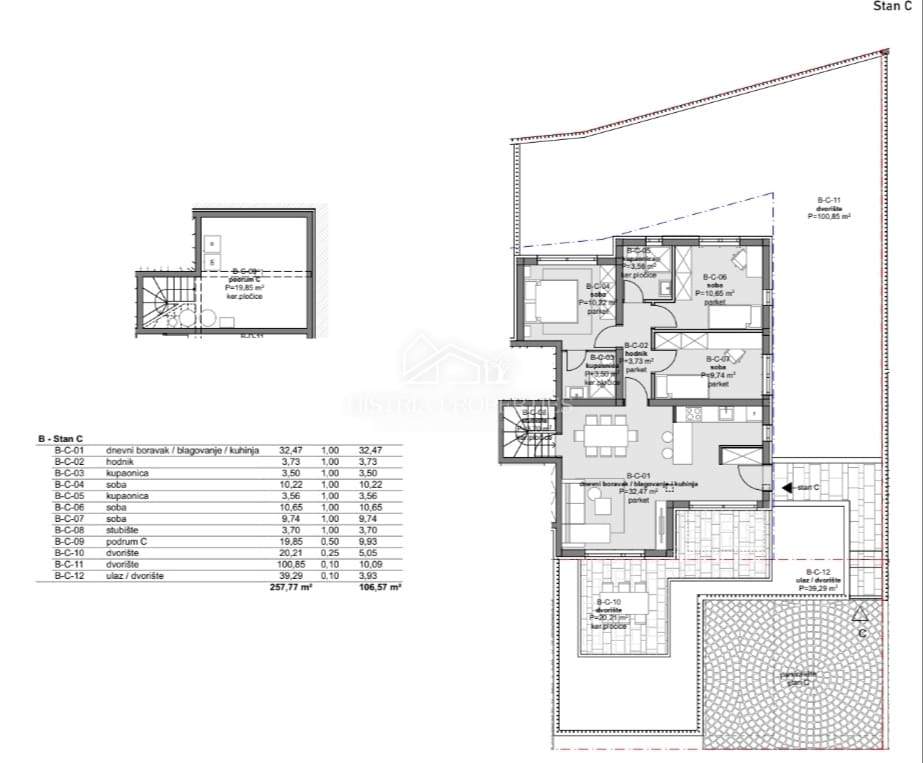
Diese Erdgeschosswohnung mit Innenhof, eigenem Eingang und Keller befindet sich in begehrter Lage in einer Familiensiedlung mit modernen Gebäuden.
Die Wohnung besteht aus einem kleinen Flur mit Garderobe, der in ein geräumiges Wohnzimmer mit Küche und Essbereich sowie Zugang zur Terrasse und zum Vorgarten führt.
Der gesamte Wohnraum ist
Mehr lesen
Objekt ID: 1468248
Preis: € 435.000
Nutzfläche: 0 m2
Gesamtfläche: 0 m2
Ziimmer insgesamt: 4
Schlafzimmer: 4
Badezimmer: 1
Nutzungsart: Wohnen
Provisionspflichtig: ja
WC: 1





