Objektbeschreibung
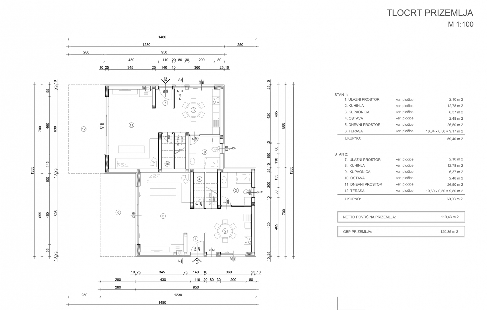
In ruhiger Lage in der Nähe von Malinska befindet sich dieses moderne Doppelhaus, ideal für Familien oder als Ferienimmobilie. Der elegant gestaltete Vorderbereich mit zwei privaten Parkplätzen lässt sofort den hohen Komfort und die Qualität dieser Immobilie erahnen. Das Erdgeschoss besticht durch ein geräumiges Wohnzimmer, das harmonisch mit der modern
Mehr lesen
Objekt ID: 1475172
Preis: € 650.000
Nutzfläche: 0 m2
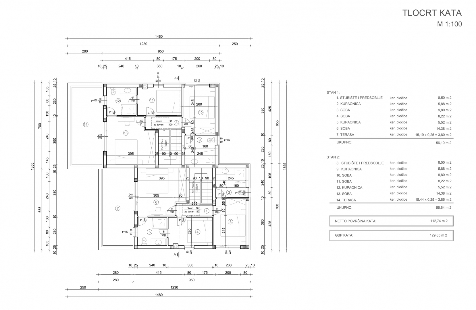
Gesamtfläche: 200 m2
Ziimmer insgesamt: 4
Schlafzimmer: 4
Badezimmer: 3
Nutzungsart: Wohnen
Provisionspflichtig: ja





















