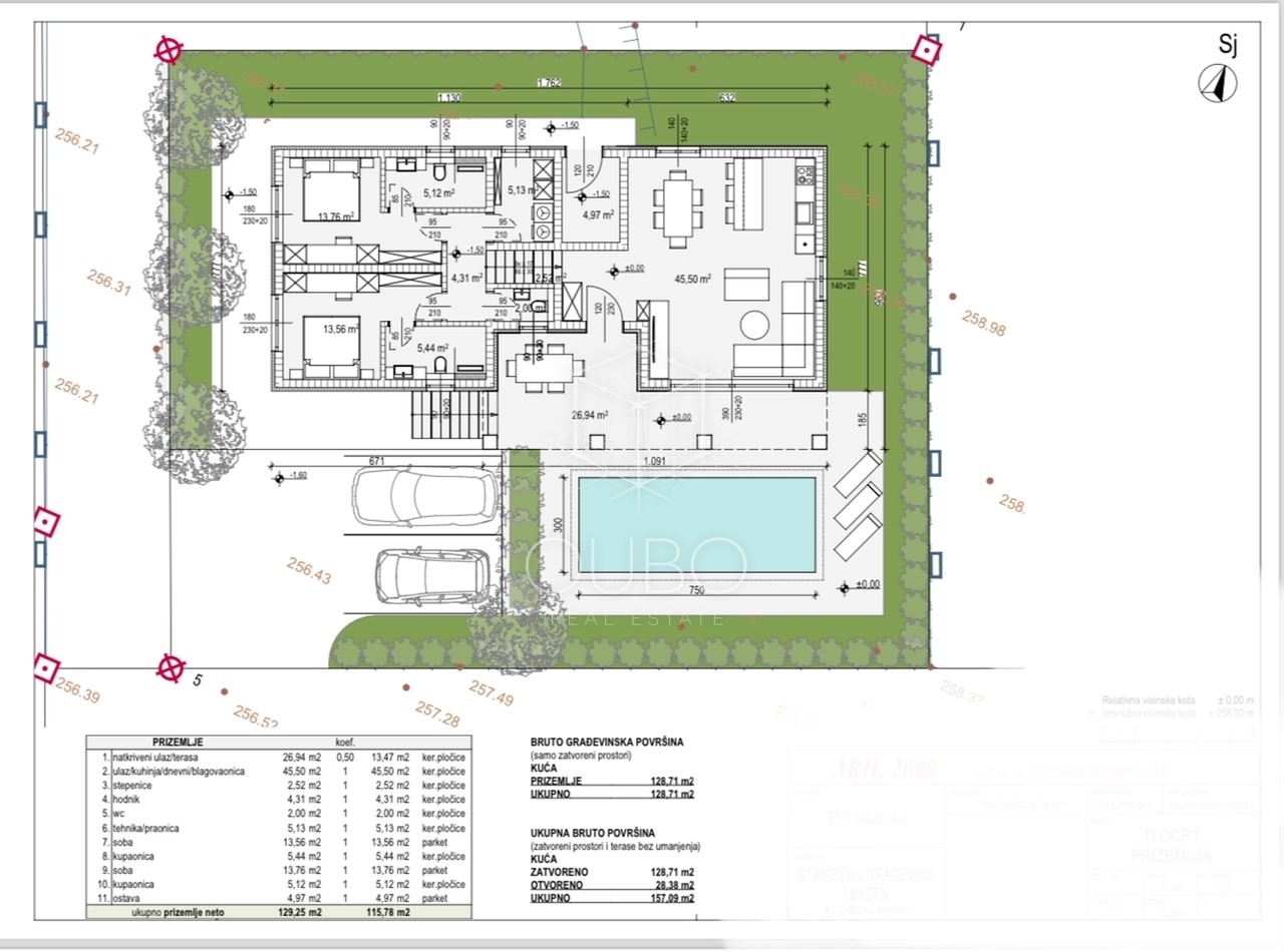
Objektbeschreibung
In dem ruhigen Ort Bibići, umgeben von exklusiven Villen und mediterraner Natur, steht dieses 472 m² große Baugrundstück mit genehmigtem Bauprojekt und gültiger Baugenehmigung zum Verkauf. Ideal für ein privates Ferienhaus oder eine renditestarke Investition in den Tourismus Istriens.
Durchdachtes Projekt für modernen Lebensstil
Geplant ist:
• offener
Mehr lesen
Objekt ID: 1481633
Preis: € 79.000
Nutzfläche: 0 m2
Gesamtfläche: 0 m2
Ziimmer insgesamt: 0
Schlafzimmer: 0
Badezimmer: 0
Nutzungsart: Anlage
Provisionspflichtig: ja














