Objektbeschreibung
In ruhiger Lage in der Nähe von Ozalj wurde ein Projekt für ein modernes Einfamilienhaus entwickelt, das zeitgenössisches Design, überlegene Funktionalität und hochwertige Verarbeitung vereint. Dieses attraktive Anwesen wird mit klaren Linien, luftigen Innenräumen und großen Glasflächen gestaltet, die für viel natürliches Licht sorgen und einen wunderschönen, freien Ausblick auf
Mehr lesen
Objekt ID: 1483014
Preis: € 197.000
Nutzfläche: 0 m2
Gesamtfläche: 1.000 m2
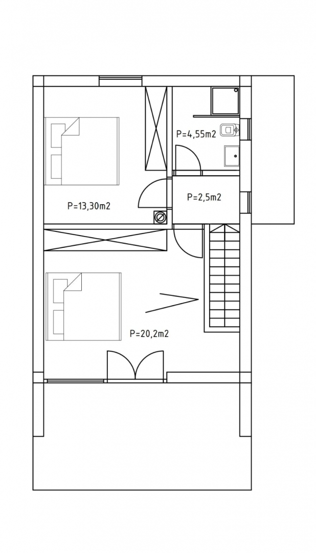
Ziimmer insgesamt: 3
Schlafzimmer: 3
Badezimmer: 1
Nutzungsart: Wohnen
Provisionspflichtig: ja
WC: 1












