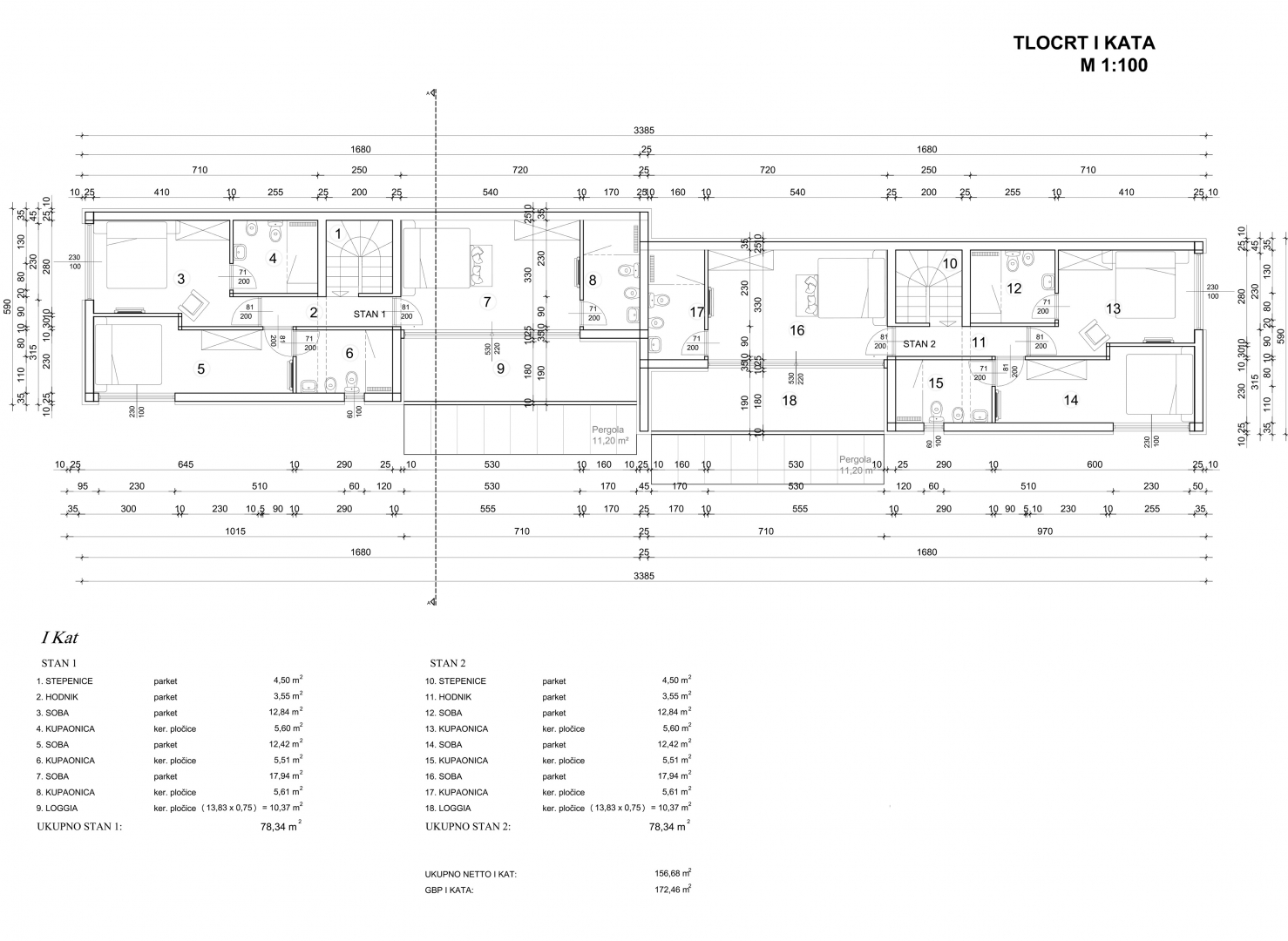
Objektbeschreibung
In einer prestigeträchtigen Lage mit wunderschönem Meerblick bietet dieses moderne Doppelhaus die perfekte Mischung aus Luxus, Komfort und Funktionalität. Es wurde mit Liebe zum Detail entworfen und bietet ein außergewöhnliches Gefühl von Großzügigkeit und Eleganz, ideal, um den mediterranen Lebensstil zu genießen. Durch die Eingangshalle gelangen Sie in den großzügigen
Mehr lesen
Objekt ID: 1484802
Preis: € 650.000
Nutzfläche: 0 m2
Gesamtfläche: 0 m2
Ziimmer insgesamt: 5
Schlafzimmer: 5
Badezimmer: 5
Nutzungsart: Wohnen
Provisionspflichtig: ja
WC: 1





















