Objektbeschreibung
Dies ist eine großartige Gelegenheit, eine neue Wohnung mit Garten in ruhiger Lage unweit des Zentrums von Pula und seiner zahlreichen Sehenswürdigkeiten zu erwerben.
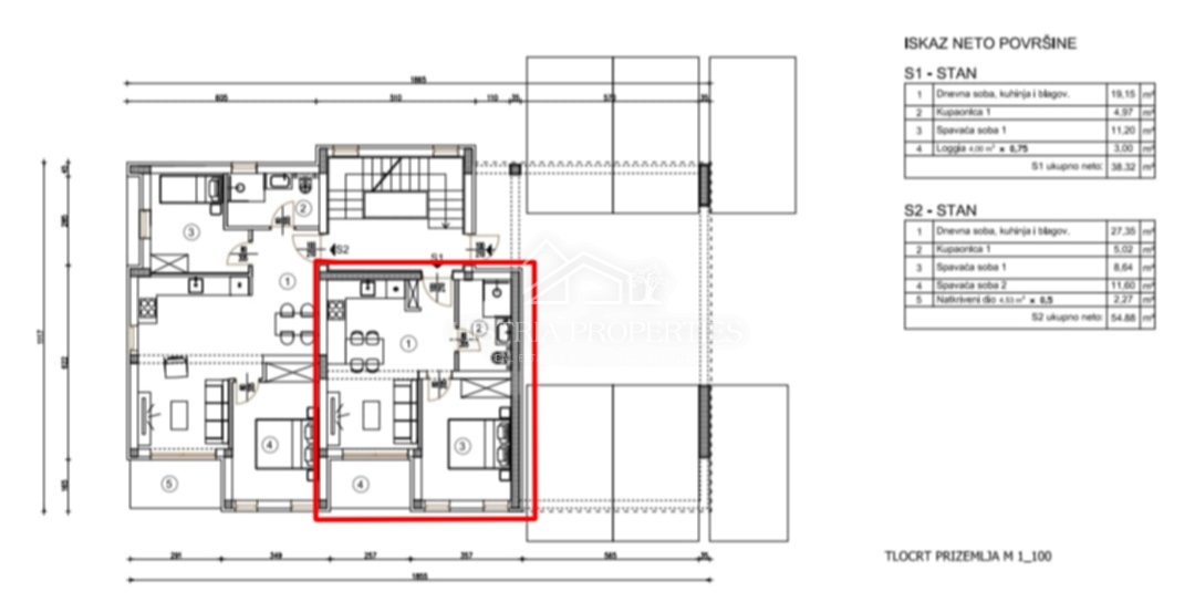
Die Wohnung besteht aus einem Eingangsbereich, einer Küche, einem Esszimmer, einem Wohnzimmer mit Zugang zu einer sonnigen, überdachten Terrasse und einem grünen Gartenbereich, einem Schlafzimmer und
Mehr lesen
Objekt ID: 1486950
Preis: € 128.750
Nutzfläche: 0 m2
Gesamtfläche: 0 m2
Ziimmer insgesamt: 2
Schlafzimmer: 2
Badezimmer: 1
Nutzungsart: Wohnen
Provisionspflichtig: ja





