Erweiterte Suche
Andere Eigenschaften
Suchagent aktivieren
Exklusive Anzeigen

Sofort beziehbar- TOP 2. Nähe Wels in Niederthalheim– stilvolles Doppelhaus mit Weitblick ins Grüne

€ 434.999,00

,

133
zu Favoriten hinzufügen
teilen
Suchergebnisse

Objektbeschreibung

🌿 Dein neues Zuhause in Niederthalheim – modern, ruhig, im Grünen
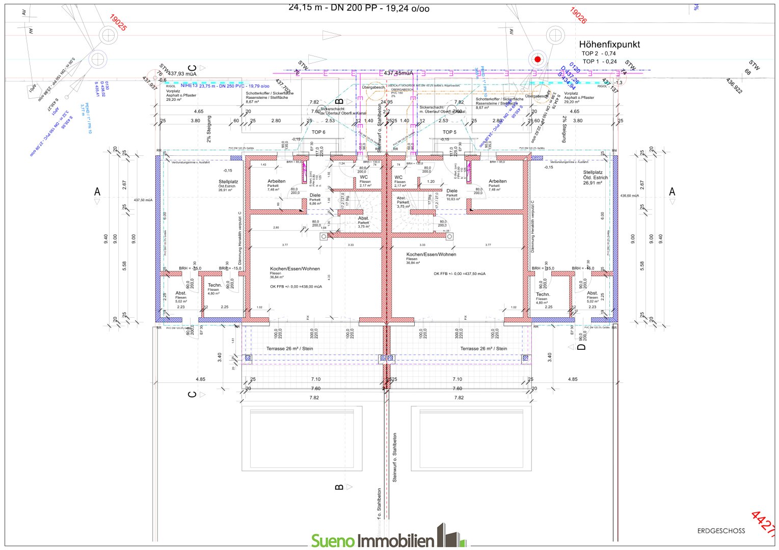
133 m² Wohnfläche | € 434.999 | schlüsselfertig | Fertigstellung Herbst 2025 abgeschlossen

Wo dein Leben Raum bekommt – Nicht 08/15 – dein neues Zuhause mit Anspruch

Modernes Doppelhaus am Feldrand – perfekt für alle, die naturnah leben und trotzdem gut
Mehr lesen

Bezirk:
Bundesland:
PLZ: 4692
Land: Österreich
Objekt ID: 1493724
Preis: € 434.999
Nutzfläche: 133 m2
Gesamtfläche: 0 m2
Ziimmer insgesamt: 0
Schlafzimmer: 0
Badezimmer: 0
Nutzungsart: Wohnen
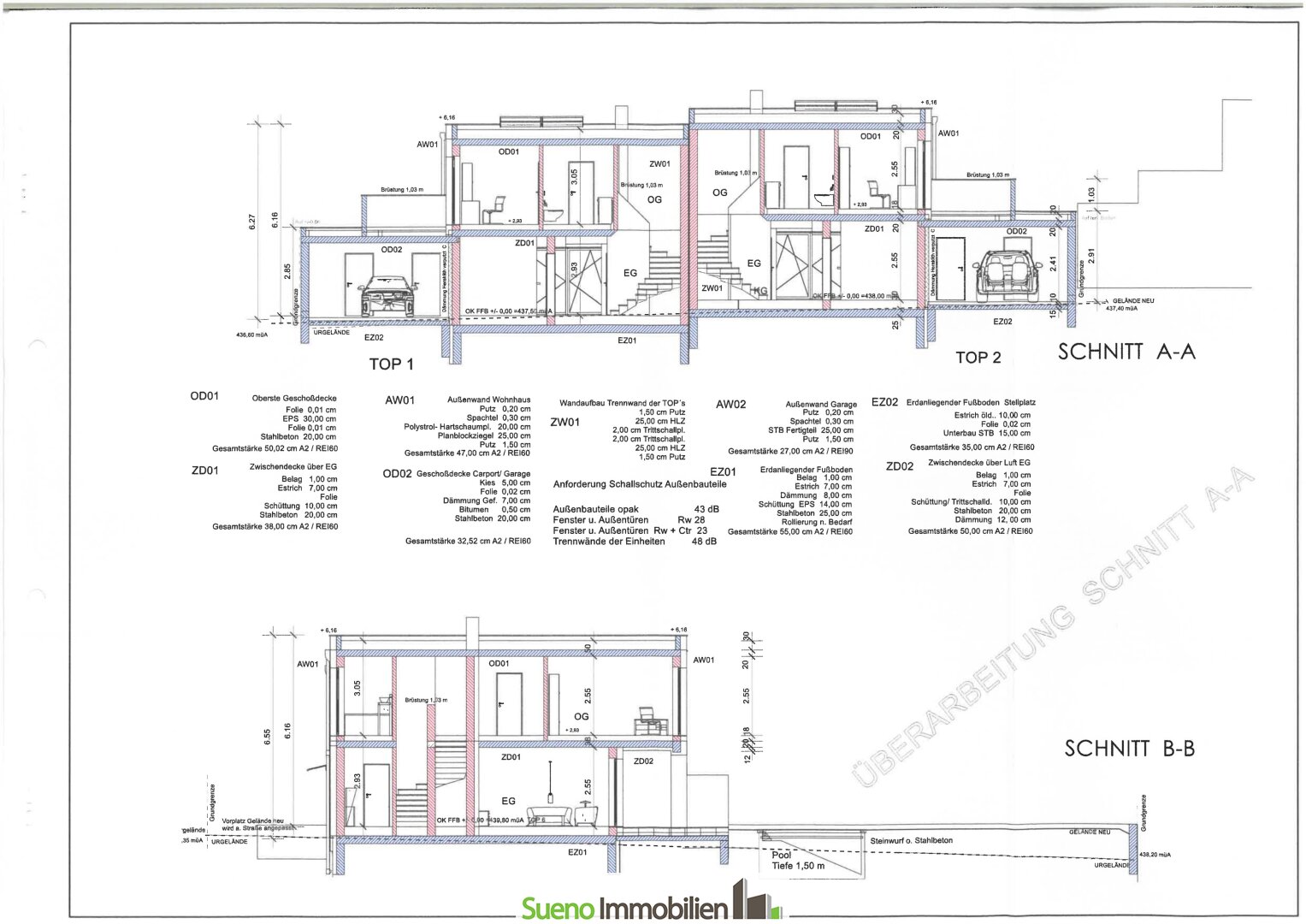
HWB: 38 kWh/(m²*a)
HWB Klasse: B
FGEE: 0.63
E-Ausweis Gültig Bis:: 18.07.2033
Energieausweis Art: Bedarf
Beziehbar: Herbst 2025
Neubau
Fußbodenheizung
Abstellraum
Garage
Luft-Wärmepumpe
schlüsselfertig mit Bodenplatte
Flachdach

Ähnliche Objekte

vergleichen
53qgfFlQkvVvA2lv9NUCts

Sofort beziehbar – TOP 1. Nähe Wels in...

€ 434.999
133 m2
Größe
Dezember 18, 2025
vergleichen
5gU1Umi6v25QVgLA8vVKCJ

Bezugsfertig Herbst 2026 – TOP 3. Nähe...

€ 434.999
133 m2
Größe
Dezember 18, 2025
vergleichen
4m303gLJKofbri6Hy34hOj 1

RESERVIERT-Bezugsfertig Herbst 2026 – ...

€ 434.999
133 m2
Größe
Dezember 18, 2025

Sueno Immobilien GmbH
Anna Krammer

Kontaktaufnahme









    • Preisinformation
      Objektpreis434.999,00 €

    Vergleichen