Objektbeschreibung
Willkommen in Ihrem neuen Zuhause in 5230 Mattighofen, Oberösterreich! Diese beeindruckende Wohnung im Erdgeschoss vereint modernen Komfort mit einem Hauch von ländlicher Idylle und bietet Ihnen alles, was Sie für ein harmonisches Leben benötigen.
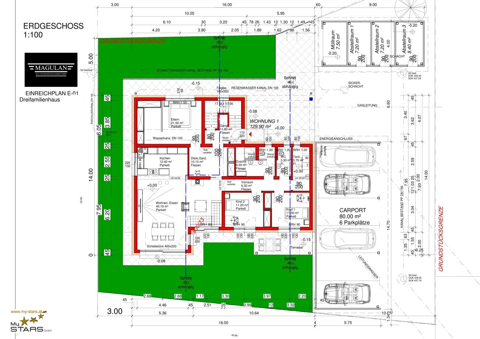
Mit einer großzügigen Wohnfläche von 130 m² und vier lichtdurchfluteten Zimmern ist diese gepflegte Immobilie der
Mehr lesen
Objekt ID: 1516010
Preis: € 519.000
Nutzfläche: 130 m2
Gesamtfläche: 138 m2
Ziimmer insgesamt: 4
Schlafzimmer: 4
Badezimmer: 1
Miete/m2 €: 3774.55
Nutzungsart: Anlage
Provisionspflichtig: ja
Provision: 3% des Kaufpreises zzgl. 20% USt.
HWB: 47 kWh/(m²*a)
FGEE: 0.71
E-Ausweis Gültig Bis:: 26.09.2031
Energieausweis Art: Bedarf
Balkon/Terrassen - Fläche: 44
Beziehbar: nach Vereinbarung
Etage: EG
WC: 2
Abstellräume: 2
Neubau
Einbauküche
Gäste-WC
Gas
Bad mit Fenster
Fußbodenheizung
Carport
Massiv
Massivbauweise
schlüsselfertig mit Bodenplatte
vollerschlossen
Dielen
Ähnliche Objekte
Charmante Eigentumswohnung mit Balkon, Garag...
€ 110.000
2
Schlafzimmer
1
Badezimmer
64 m2
Größe
Februar 15, 2026






