Objektbeschreibung
Zinshaus mit Potenzial in Linz-Ebelsberg – Nähe Schloss Ebelsberg!!
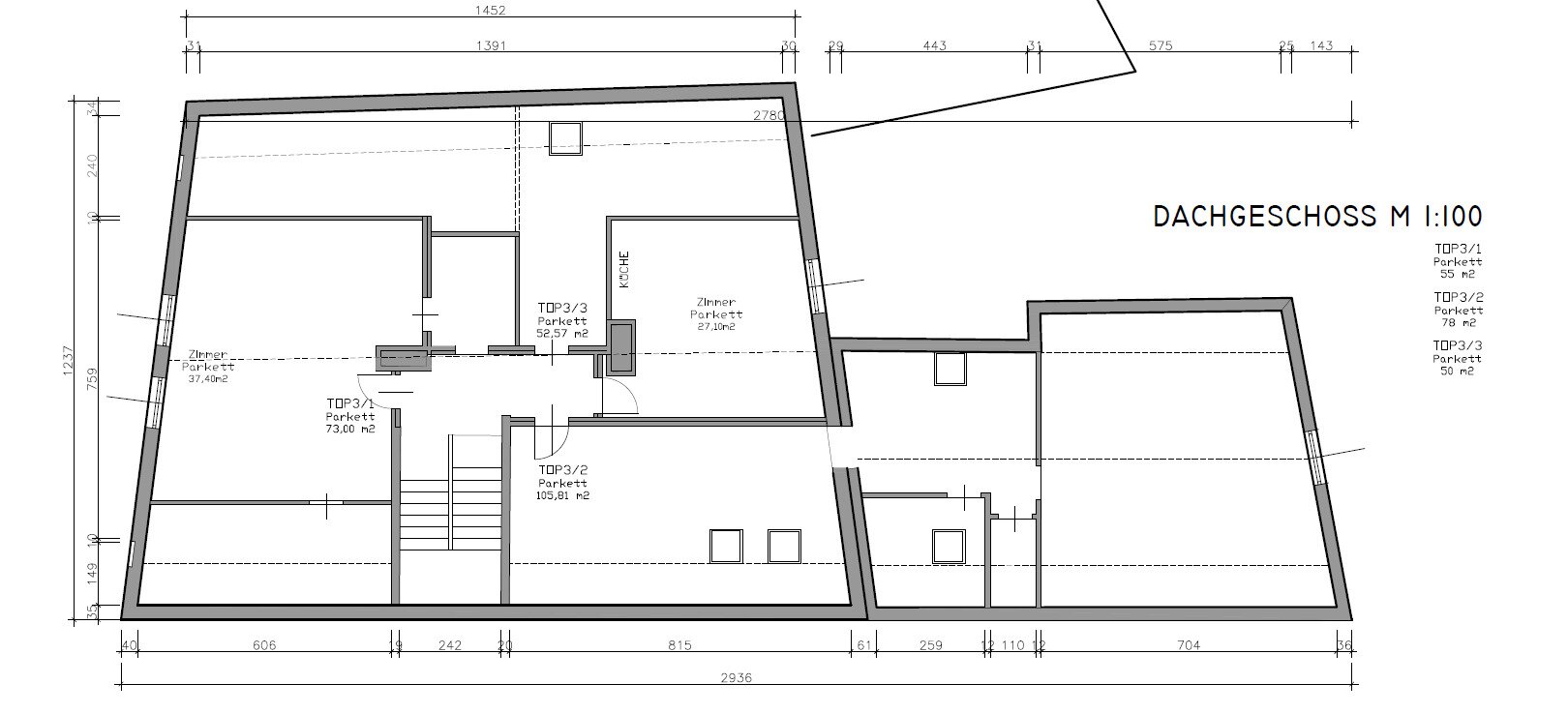
Dieses vielseitige Wohn- und Gewerbeobjekt bietet großzügige Flächen, eine solide Bausubstanz und laufend durchgeführte Sanierungen, die es sowohl für Eigennutzer als auch für Investoren besonders interessant machen. Das Hauptgebäude wurde ursprünglich um 1940 errichtet und seither mehrfach erweitert und modernisiert. Es
Mehr lesen
Objekt ID: 1516544
Preis: € 1.250.000
Nutzfläche: 0 m2
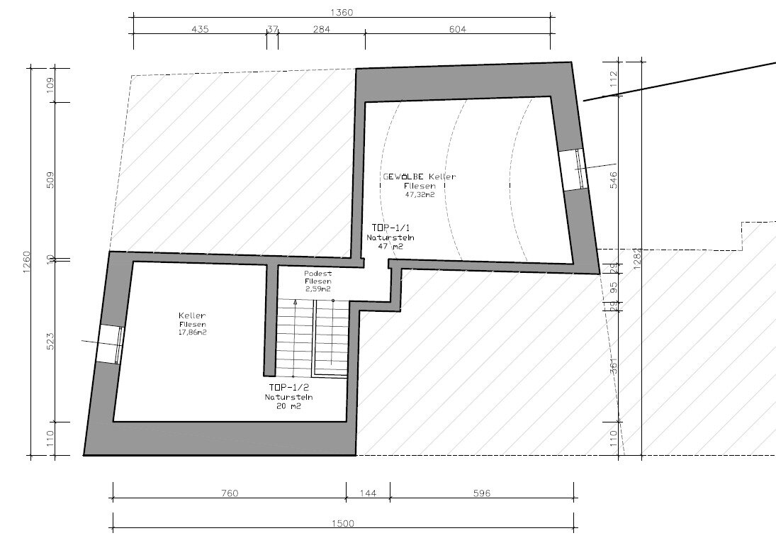
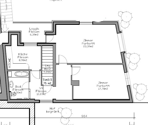
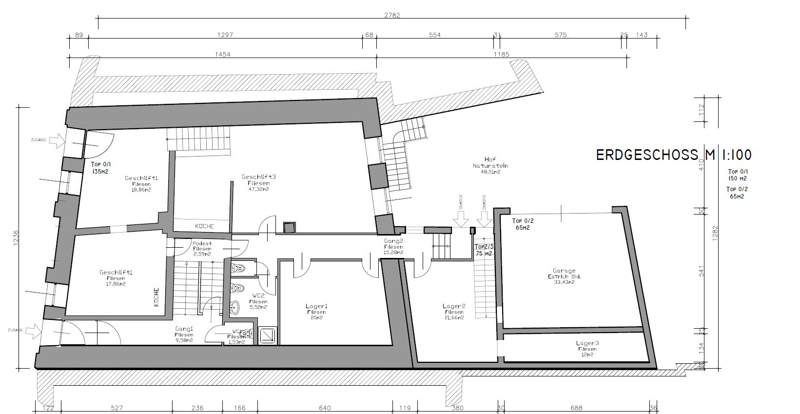
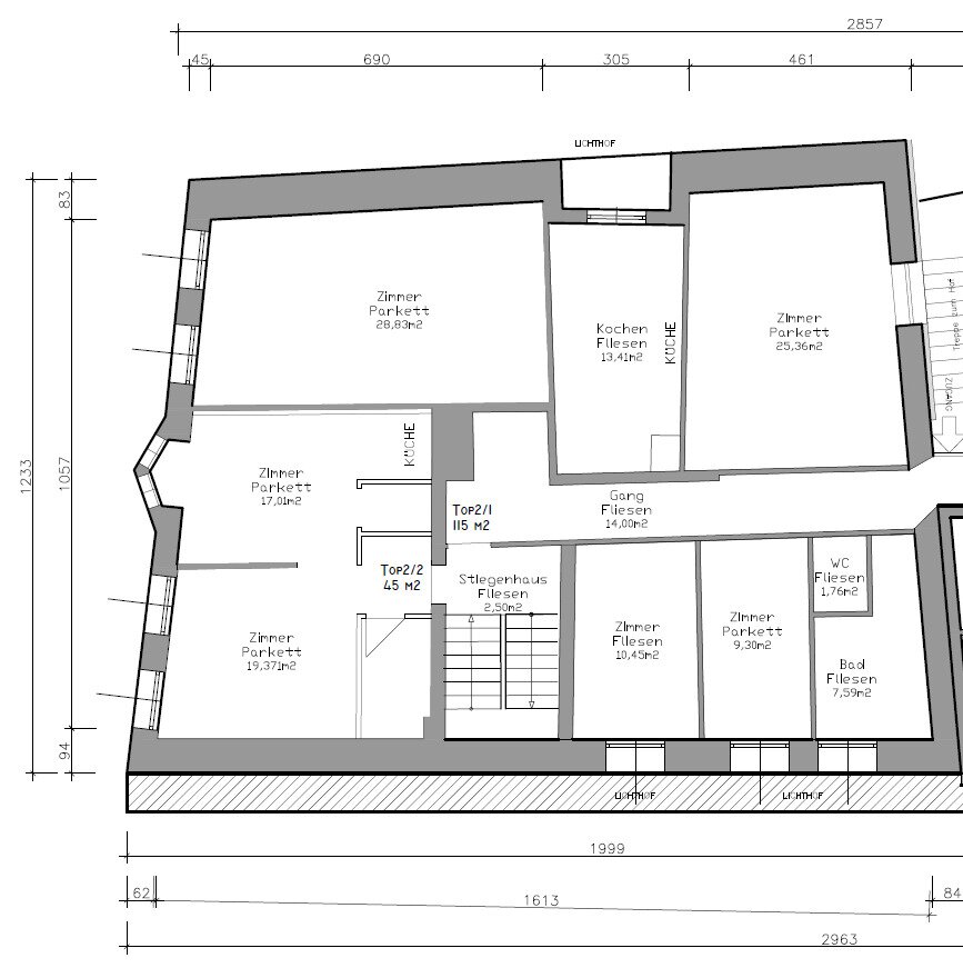
Gesamtfläche: 850 m2
Ziimmer insgesamt: 0
Schlafzimmer: 0
Badezimmer: 0
Nutzungsart: Anlage
Provisionspflichtig: ja
Provision: 3% des Kaufpreises zzgl. 20% USt.
HWB: 121 kWh/(m²*a)
HWB Klasse: D
FGEE: 1.95
E-Ausweis Gültig Bis:: 31.10.2034
Energieausweis Art: Bedarf
Gas
Parkett
Badewanne
Abstellraum
Freiplatz
Fernheizung
Ähnliche Objekte
Büro- oder Geschäftslokal mit ca. 215 m² in ...
€ 349.000
2
Schlafzimmer
1
Badezimmer
Dezember 19, 2025













