Erweiterte Suche
Suchagent aktivieren
Exklusive Anzeigen

Reihenhaus-Highlight mit schönem Garten – Einkauf, Schule und Öffis „vor der Türe“

€ 790.000,00

,

1245 Zimmer
zu Favoriten hinzufügen
teilen
Suchergebnisse

Objektbeschreibung

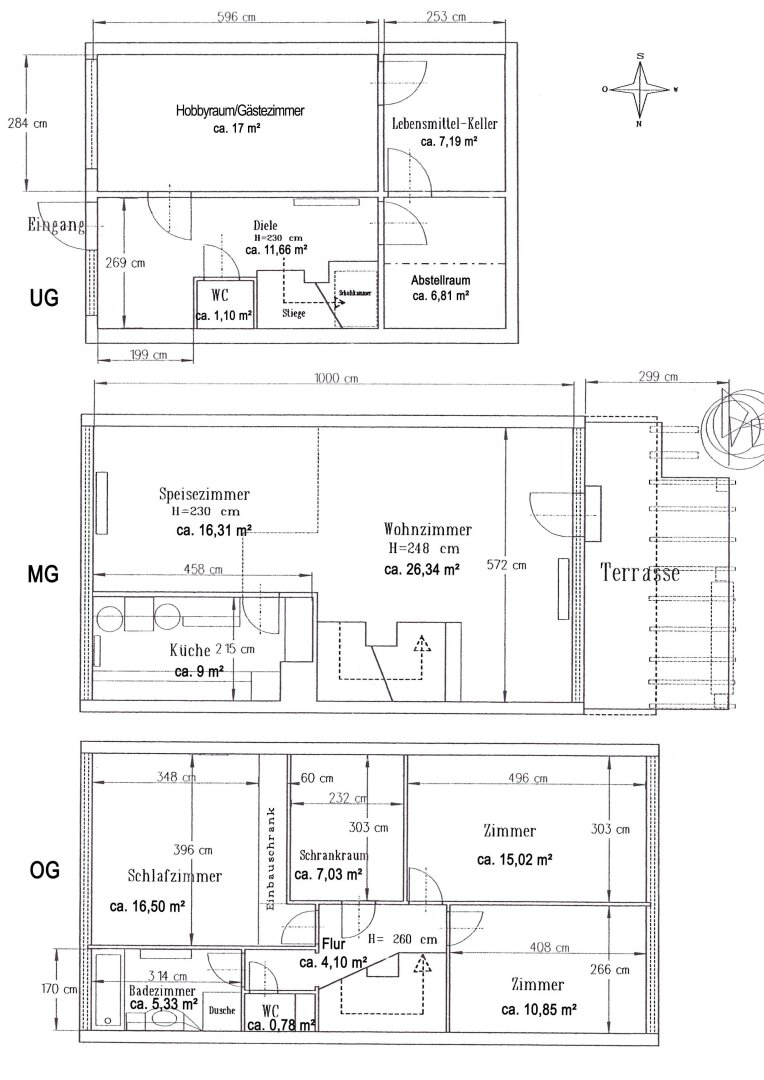
Zum Verkauf steht dieses gepflegte Reihenhaus in ausgezeichneter Lage des 14. Wiener Gemeindebezirks. Über drei Ebenen bietet es viel Platz, einen ruhigen Westgarten und eine hervorragende Infrastruktur in unmittelbarer Umgebung.

Im Untergeschoß befinden sich Diele mit Garderobe, Abstellräume, Lebensmittelkeller und separates WC. Das Mittelgeschoß überzeugt mit großzügigem Wohn- und Essbereich,
Mehr lesen

Ort:
Bezirk:
Bundesland:
PLZ: 1140
Land: Österreich
Objekt ID: 1517311
Preis: € 790.000
Nutzfläche: 124 m2
Gesamtfläche: 0 m2
Ziimmer insgesamt: 5
Schlafzimmer: 5
Badezimmer: 1
Betriebskosten €: 201.33
Nutzungsart: Wohnen
Provisionspflichtig: ja
Provision: 3% des Kaufpreises zzgl. 20% USt.
HWB: 102,99 kWh/(m²*a)
HWB Klasse: C
E-Ausweis Gültig Bis:: 08.01.2033
Energieausweis Art: Bedarf
Beziehbar: n.V.
WC: 2
Abstellräume: 2
Einbauküche
Etagenheizung
Gas
Bad mit Fenster
Kabel/Sat-TV
Abstellraum
Laminat
Freiplatz
Flachdach
Grundriss Skizze
Grundriss Skizze

Ähnliche Objekte

vergleichen
Ihr Blick nach Süden auf Weinreben

Reihenhaus auf Baurechtsgrund mit Blick auf ...

€ 355.000
3
Schlafzimmer
1
Badezimmer
90 m2
Größe
Mai 10, 2026
vergleichen
Bo5dUiu8OsHEJflPB9BwM

VILLA IN BESTLAGE BEI HOHER WARTE MIT POTENZ...

€ 2.950.000
13
Schlafzimmer
Mai 10, 2026
vergleichen
2VhhcJUZlNjT4tZa6YPjUo

1210 Wien, Kleingartengrundstück mit Ferienh...

€ 349.000
3
Schlafzimmer
1
Badezimmer
45 m2
Größe
Mai 10, 2026

Rudi Dräxler Immobilientreuhand GesmbH
​Maximilian Cypris

Kontaktaufnahme









    • Preisinformation
      Betriebskosten201,33 €
      Objektpreis790.000,00 €

    Vergleichen