Objektbeschreibung
DAS STADTGLÜCK
Moderne 2-Zimmer Wohnung mit Loggia in attraktivem Neubau in der Stadt Salzburg.
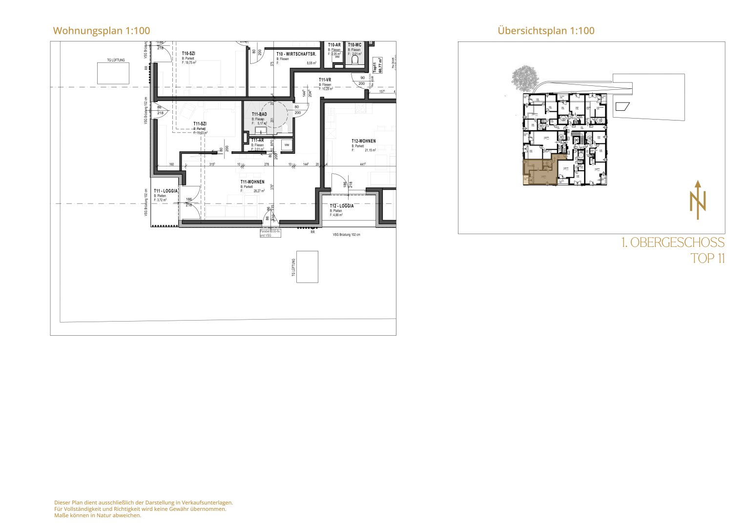
Diese charmante 2-Zimmer-Wohnung befindet sich im 1. Obergeschoss eines hochwertig realisierten Neubauprojekts, das Ende 2023 fertiggestellt wurde. Die zentrale Lage in der Stadt Salzburg vereint urbanen Komfort mit moderner Wohnqualität – ideal für Paare, Singles
Mehr lesen
Objekt ID: 1521323
Preis: € 560.000
Nutzfläche: 61 m2
Gesamtfläche: 0 m2
Ziimmer insgesamt: 2
Schlafzimmer: 2
Badezimmer: 1
Miete/m2 €: 8549.42
Nutzungsart: Wohnen
Provisionspflichtig: nein
Provision: Provisionsfrei für den Käufer!
HWB: 33 kWh/(m²*a)
FGEE: 0.73
Energieausweis Art: Bedarf
Balkon/Terrassen - Fläche: 4
Beziehbar: sofort
Etage: 1. OG
WC: 1
Abstellräume: 1
barrierefrei
Neubau
Personenaufzug
Gäste-WC
Parkett
Dusche
Fußbodenheizung
Kabel/Sat-TV
Fahrradraum
Massiv
Massivbauweise
Fernwärme
Tiefgarage












