Objektbeschreibung
Moderne Wohnung zum Verkauf in Poreč – Ruhiges Wohnviertel
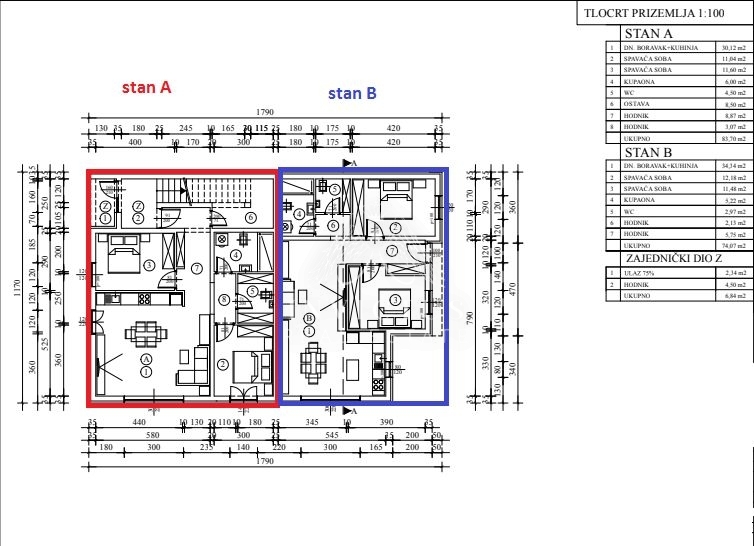
In einem ruhigen Teil von Poreč, ideal für ein komfortables Familienleben, steht eine neu im Bau befindliche Wohnung (A) zum Verkauf. Mit einer Gesamtfläche von 83,70 m² und einer zusätzlichen Terrasse von ca. 15 m² bietet diese Erdgeschosswohnung in einem modernen Gebäude mit nur 5 Wohneinheiten
Mehr lesen
Objekt ID: 1544921
Preis: € 399.000
Nutzfläche: 0 m2
Gesamtfläche: 0 m2
Ziimmer insgesamt: 3
Schlafzimmer: 3
Badezimmer: 1
Nutzungsart: Wohnen
Provisionspflichtig: ja
WC: 1

















