Erweiterte Suche
Suchagent aktivieren
Exklusive Anzeigen

SERVITENVIERTEL – LOFTARTIGE 3 ZIMMER HOFWOHNUNG NAHE U4

€ 549.000,00

,

80.233 Zimmer
zu Favoriten hinzufügen
teilen
Suchergebnisse

Objektbeschreibung

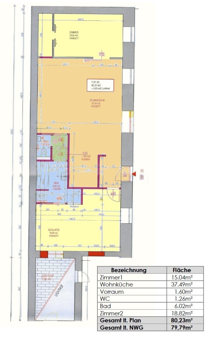
Diese loftartige 3-Zimmer-Wohnung befindet sich im Erdgeschoß (zum ruhigen begrünten Innenhof gerichtet) eines sehr schön verzierten Gründerzeithauses aus dem Jahr 1902. Die Wohnung besticht durch die Nähe zur Ubahn (U4), den modernen Grundriss sowie die ruhige Innenhoflage. 

Die zentral begehbare 3-Zimmer-Wohnung erstreckt sich auf ca. 80m² und gliedert sich wie folgt:


Mehr lesen

Ort:
Bezirk:
Bundesland:
PLZ: 1090
Land: Österreich
Objekt ID: 1559421
Preis: € 549.000
Nutzfläche: 80 m2
Gesamtfläche: 0 m2
Ziimmer insgesamt: 3
Schlafzimmer: 3
Badezimmer: 1
Nutzungsart: Wohnen
Provisionspflichtig: ja
Provision: 3% des Kaufpreises zzgl. 20% USt.
HWB: 94,30 kWh/(m²*a)
HWB Klasse: C
FGEE: 2.04
E-Ausweis Gültig Bis:: 12.09.2029
Energieausweis Art: Bedarf
Beziehbar: nach Vereinbarung
Etage: EG / Innenhofruhelage
WC: 1
Abstellräume: 1
WG-geeignet
Altbau
Etagenheizung
Gas
Parkett
Badewanne
offene Küche
Abstellraum
Offene Küche
vollerschlossen

Ähnliche Objekte

vergleichen
PYMF8CrjcWxYafBcmvC4Q9

Anlegerhit oder Eigenheim | Sanierte 2-Zimme...

€ 299.000
2
Schlafzimmer
1
Badezimmer
60 m2
Größe
vergleichen
HK9NHXCYNG23YOYf8zX79

Hofseitige Gartenwohnung mit Terrasse I Grün...

€ 360.000
3
Schlafzimmer
1
Badezimmer
59 m2
Größe
Mai 10, 2026

ICONIA GmbH
Clemens Gamlich

Kontaktaufnahme









    • Preisinformation
      Objektpreis549.000,00 €

    Vergleichen