Objektbeschreibung
Liebe Wohnungssuchende!
Da die Wohnung aktuell noch vermietet ist und wir Besichtigungen mit den Mietern koordinieren müssen, bitten wir um etwas Vorlaufzeit und um Übermittlung konkreter Terminvorschläge Ihrerseits über das Kontaktformular: [https://www.sulek.immobilien/besichtigung]
www.sulek.immobilien/besichtigung [http://www.sulek.immobilien/besichtigung] (bitte Herrn Bilgili auswählen!).
_Wenn Sie einen Besichtigungstermin wünschen, teilen Sie uns bitte im Vorfeld folgendes
Mehr lesen
Dokumente
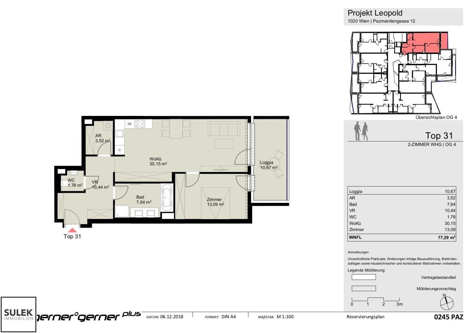
Objekt ID: 1559838
Preis: € 1.779
Nutzfläche: 67 m2
Gesamtfläche: 77 m2
Ziimmer insgesamt: 2
Schlafzimmer: 2
Badezimmer: 1
Miete (netto) €: 1483.56
USt €: 161.73
Gesamtbelastung €: 1779
Nutzungsart: Wohnen
Provisionspflichtig: nein
Provision: Gemäß Erstauftraggeberprinzip bezahlt der Abgeber die Provision.
Kaution: 5.337,00 €
HWB: 29,74 kWh/(m²*a)
HWB Klasse: B
FGEE: 1
E-Ausweis Gültig Bis:: 29.08.2026
Energieausweis Art: Bedarf
Balkon/Terrassen - Fläche: 10
Beziehbar: sofort
Etage: 4. Etage
WC: 1
Abstellräume: 1
barrierefrei
Neubau
Personenaufzug
Parkett
Badewanne
Kabel/Sat-TV
offene Küche
Abstellraum
Offene Küche
Fernheizung
Tiefgarage
Ähnliche Objekte
BOKU-Nähe – sanierte 2 Zimmer-Wohnung ...
€ 1.015.73
2
Schlafzimmer
1
Badezimmer
41 m2
Größe
April 16, 2026
Charmanter Altbau mit Terrasse & Grünbli...
€ 989.93
2
Schlafzimmer
2
Badezimmer
41 m2
Größe
April 16, 2026





















