Objektbeschreibung
Wunderschön in ruhiger und grüner Lage präsentiert sich diese entzückende Liegenschaft im idyllischen Wurzbachtal am westlichen Stadtrand Wiens. Das ebene Grundstück bietet mit dem liebevoll gepflegten Garten, der sonnigen Gartenterrasse und dem bisher nur in der warmen Jahreszeit genutzten Holzhaus viel Ruhe und Natur, was man sich für erholsame Sommermonate – oder als charmantes
Mehr lesen
Objekt ID: 1561965
Preis: € 590.000
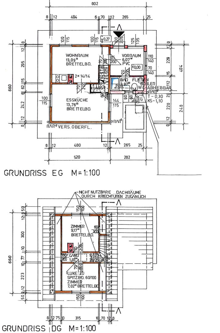
Nutzfläche: 54 m2
Gesamtfläche: 629 m2
Ziimmer insgesamt: 3
Schlafzimmer: 3
Badezimmer: 0
Nutzungsart: Anlage
Provisionspflichtig: ja
Provision: 3% des Kaufpreises zzgl. 20% USt.
HWB: 189 kWh/(m²*a)
HWB Klasse: E
FGEE: 1.95
E-Ausweis Gültig Bis:: 07.09.2035
Energieausweis Art: Bedarf
Balkon/Terrassen - Fläche: 12
Einbauküche
Bad mit Fenster
offene Küche
Abstellraum
Offene Küche
vollerschlossen
Dielen
Holz-Hackschnitzel
Holz(rahmen)
Holzbauweise
Satteldach
Ähnliche Objekte
Stilvolles Reihenhaus mit Terrasse, Garten u...
€ 669.900
4
Schlafzimmer
1
Badezimmer
102 m2
Größe
April 15, 2026

















