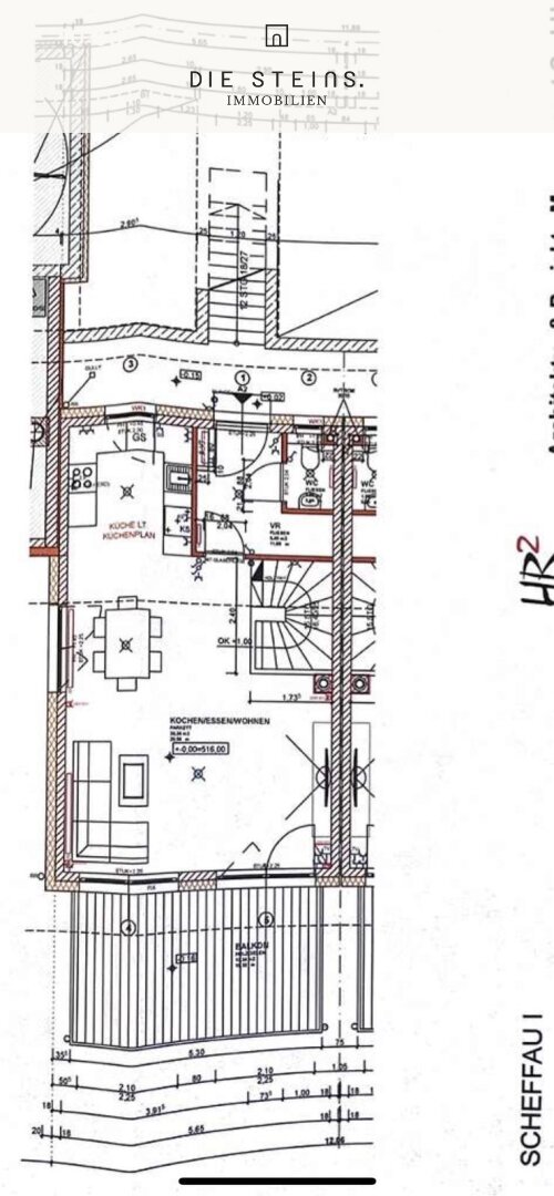
Objektbeschreibung
Das Haus erstreckt sich über drei Ebenen und bietet durchdachten Wohnkomfort auf rund 120 m² Nutzfläche. Der lichtdurchflutete Wohnbereich mit Raumhöhen bis zu 3,50 m beeindruckt mit großzügigen Panoramafenstern, einem offenen Grundriss und direktem Zugang zum sonnigen Balkon. Hier genießt man den Ausblick ins Grüne und auf das Tennengebirge.
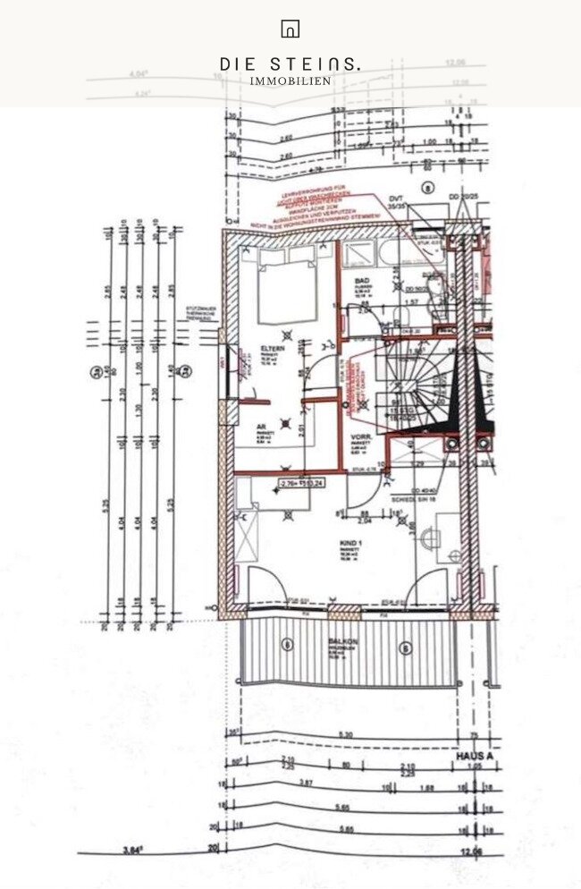
Die Schlafetage verfügt
Mehr lesen
Objekt ID: 1569385
Preis: € 535.000
Nutzfläche: 0 m2
Gesamtfläche: 121 m2
Ziimmer insgesamt: 5
Schlafzimmer: 5
Badezimmer: 1
Nutzungsart: Wohnen
Provisionspflichtig: ja
Provision: 3% des Kaufpreises zzgl. 20% USt.
HWB: 62,40 kWh/(m²*a)
HWB Klasse: C
FGEE: 1.12
E-Ausweis Gültig Bis:: 29.05.2034
Energieausweis Art: Bedarf
Anzahl Balkone: 2
Balkon/Terrassen - Fläche: 29
Beziehbar: sofort
WC: 2
Abstellräume: 1
Balkon
Neubau
Einbauküche
Gäste-WC
Parkett
Bad mit Fenster
Pellets
Abstellraum
Carport
Massiv
Massivbauweise
Gartennutzung
Ähnliche Objekte
K3 – Aufstrebendes Scheffau! Charmante...
€ 398.000
5
Schlafzimmer
1
Badezimmer
110 m2
Größe
Dezember 13, 2025






