Objektbeschreibung
„DONAU PERLE“ – IHR WOHNTRAUM MIT MEHRWERT
Willkommen in Floridsdorf – hier entsteht ein Zuhause, das weit mehr ist als nur vier Wände. Ein Ort zum Wohlfühlen, Durchatmen und Ankommen. Dieses Neubauprojekt vereint modernen urbanen Lifestyle mit der Ruhe und Schönheit der Natur – eine außergewöhnliche Kombination, die Wohnqualität auf
Mehr lesen
Objekt ID: 1577928
Preis: € 369.000
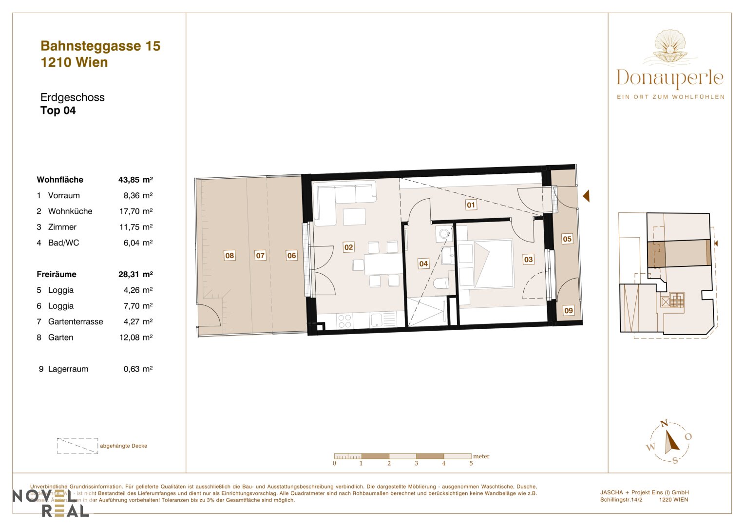
Nutzfläche: 56 m2
Gesamtfläche: 56 m2
Ziimmer insgesamt: 2
Schlafzimmer: 2
Badezimmer: 1
Nutzungsart: Anlage
Provisionspflichtig: ja
Provision: 3% des Kaufpreises zzgl. 20% USt.
HWB: 27,80 kWh/(m²*a)
HWB Klasse: B
Energieausweis Art: Bedarf
Balkon/Terrassen - Fläche: 16
Etage: EG
WC: 1
Abstellräume: 1
Neubau
Personenaufzug
Parkett
Bad mit Fenster
Fußbodenheizung
Kabel/Sat-TV
Fahrradraum
offene Küche
Abstellraum
Offene Küche
Klimaanlage
Gartennutzung
seniorengerecht
Tiefgarage
Erdwärme
Ähnliche Objekte
Schloßpark Hacking I 2 Zimmer I Gartenwohnun...
€ 885.000
2
Schlafzimmer
1
Badezimmer
67 m2
Größe
Februar 8, 2026
Sanierter STILALTBAU mit HOFTERRASSE in RUHE...
€ 330.890
3
Schlafzimmer
1
Badezimmer
63 m2
Größe
Februar 8, 2026
Dachwohnung mit Terrasse I Erstbezug A\
€ 1.095.000
3
Schlafzimmer
2
Badezimmer
88 m2
Größe
Februar 8, 2026






