Objektbeschreibung
_NACHHALTIGES WOHNBAUPROJEKT IM HIPPEN MEIDLING _
_BEZUGSFERTIG_
In diesem zukunftsweisenden Wohnprojekt im angesagten Meidling, an der Ecke zur Längenfeldgasse entstanden 78 Wohnungen und 2 Ateliers mit verschiedenen Raumgrößen und eignen sich aufgrund der intelligenten Grundrissplanung perfekt für Singles, Paare und Familien. Zusätzlich entstanden 31 Tiefgaragenstellplätze. Die modernen Wohneinheiten sind mit Parkett
Mehr lesen
Objekt ID: 1582217
Preis: € 1.190.800
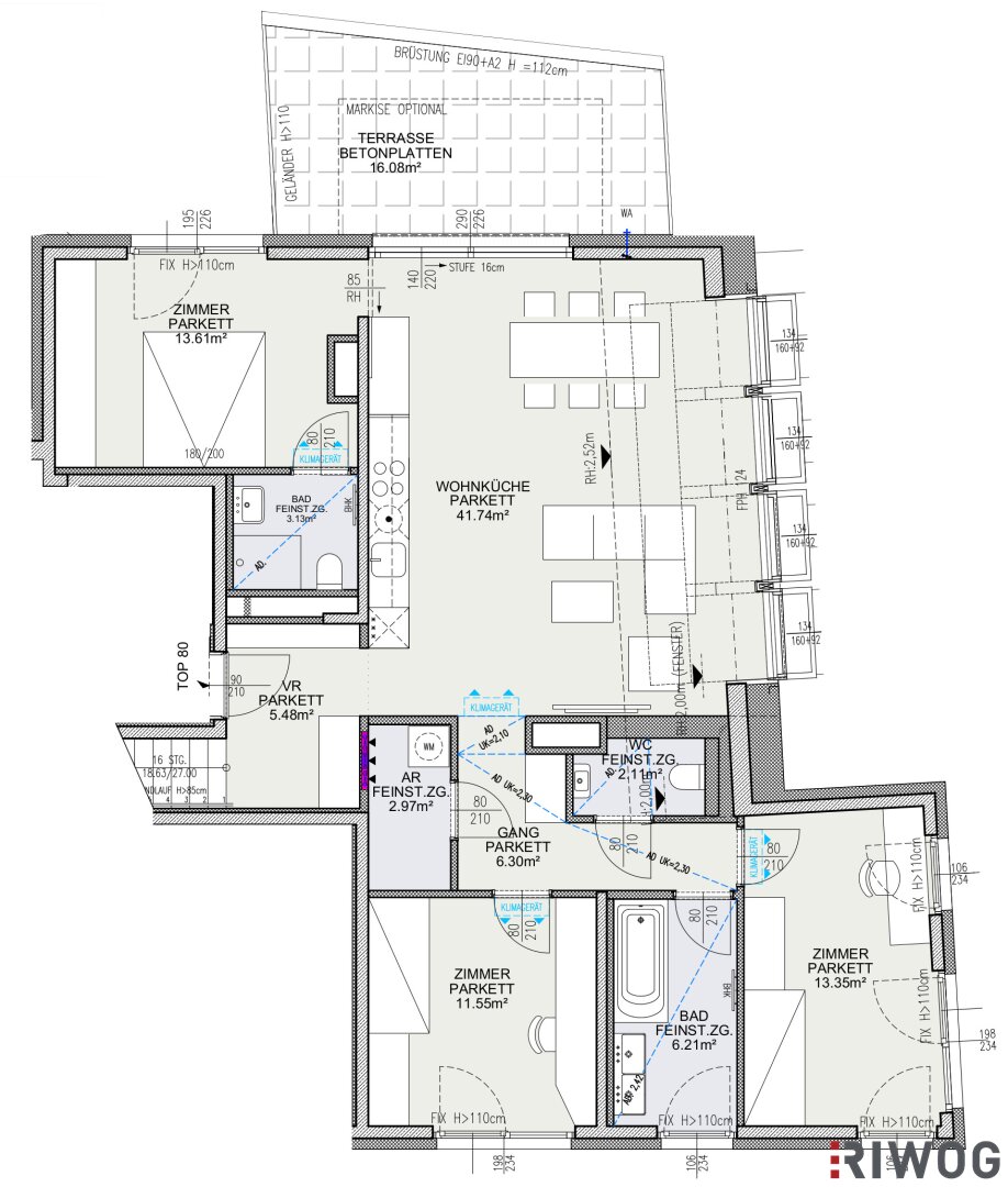
Nutzfläche: 108 m2
Gesamtfläche: 0 m2
Ziimmer insgesamt: 4
Schlafzimmer: 4
Badezimmer: 2
Nutzungsart: Anlage
Provisionspflichtig: ja
Provision: 42.868,80 € inkl. 20% USt.
HWB: 26,40 kWh/(m²*a)
HWB Klasse: B
FGEE: 0.73
E-Ausweis Gültig Bis:: 26.08.2031
Energieausweis Art: Bedarf
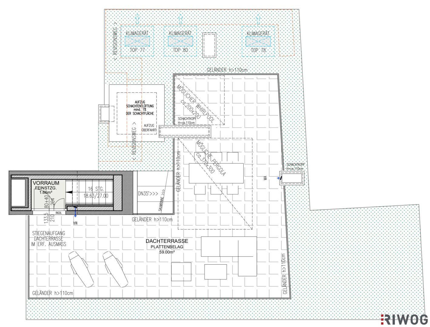
Balkon/Terrassen - Fläche: 75
Beziehbar: ab sofort
Etage: 2. DG / 2. DG + Dachterrasse
WC: 2
Abstellräume: 1
barrierefrei
Neubau
Personenaufzug
Gäste-WC
Bad mit Fenster
Fußbodenheizung
Kabel/Sat-TV
Fahrradraum
offene Küche
Abstellraum
Offene Küche
Rollläden
Klimaanlage
Estrich
Fernwärme
Ähnliche Objekte
Saniert I Traumblick I 50m² Dachterrasse I N...
€ 475.000
3
Schlafzimmer
1
Badezimmer
80 m2
Größe
März 1, 2026
Gartenwohnung Nähe Gersthofer Straße I Erstb...
€ 711.000
3
Schlafzimmer
2
Badezimmer
85 m2
Größe
März 1, 2026




![Gartenwohnung Nähe Gersthofer Straße I Erstbezug [A] 5CQVoTEbsptoQTHyXBAABm](https://gesucht-gefunden.at/wp-content/uploadstorage/2026/02/5CQVoTEbsptoQTHyXBAABm-525x350.jpg)




















































