Objektbeschreibung
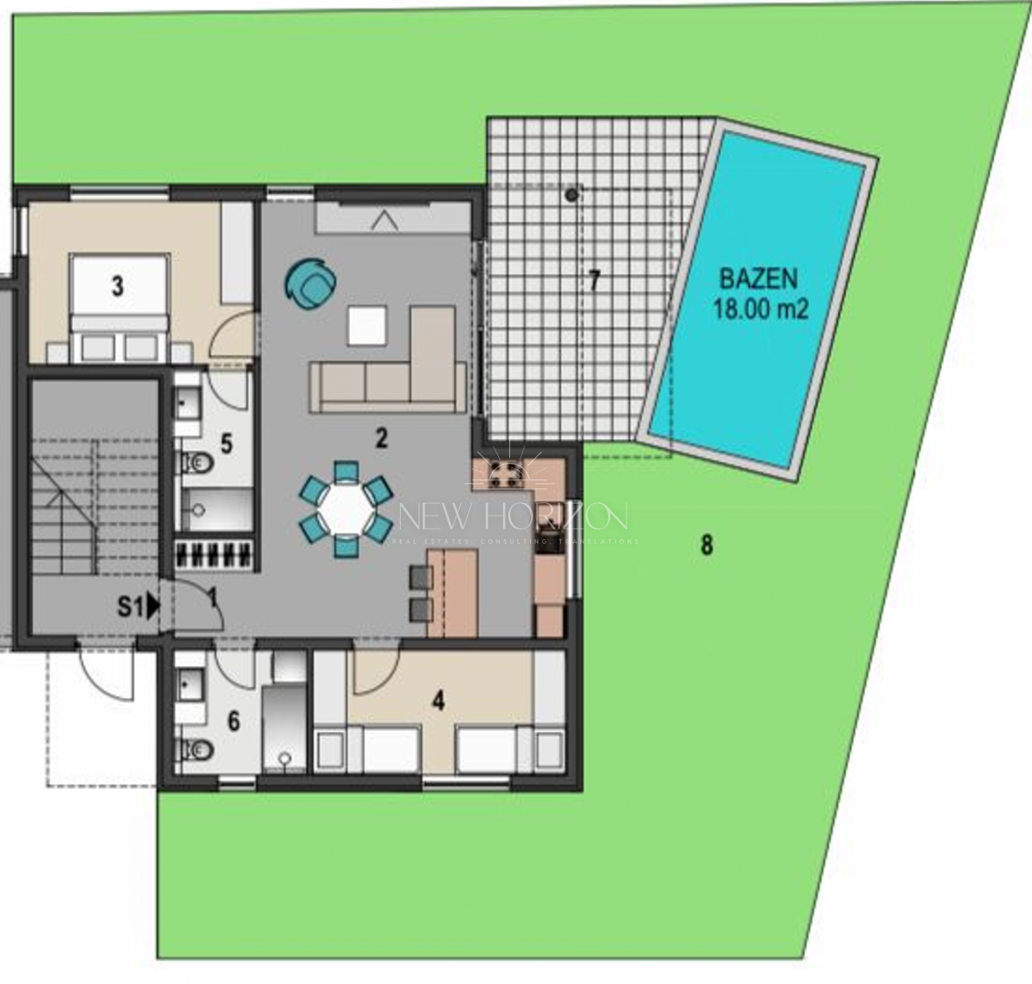
We present apartment S1 located on the ground floor of a small building with 4 apartments.
Apartment layout:
– entrance hall with wardrobe space – 2.70m2
– bedroom with the possibility of 2 separate beds – 10.20m2
– shared bathroom – 5.30m2
– master bedroom with
Mehr lesen
Objekt ID: 1600468
Preis: € 319.999
Nutzfläche: 0 m2
Gesamtfläche: 0 m2
Ziimmer insgesamt: 3
Schlafzimmer: 3
Badezimmer: 2
Nutzungsart: Wohnen
Provisionspflichtig: ja








