Objektbeschreibung
Commercial space 70 m from the sea – Kaštela, Building B
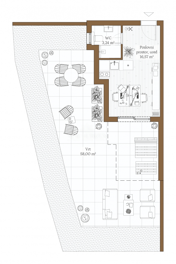
We invite you to familiarize yourself with the unique offer for the sale of commercial space No. 2, located on the ground floor of building C in a modern complex of three buildings located in picturesque Kaštela– just
Mehr lesen
Objekt ID: 1600474
Preis: € 165.000
Nutzfläche: 0 m2
Gesamtfläche: 0 m2
Ziimmer insgesamt: 1
Schlafzimmer: 1
Badezimmer: 1
Nutzungsart: Wohnen
Provisionspflichtig: ja


















