Objektbeschreibung
Duplex apartment with garden 70 m from the sea – Kaštela, Building B
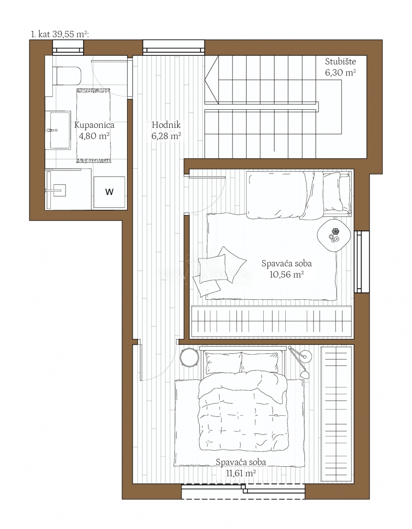
We invite you to familiarize yourself with the unique offer for the sale of duplex apartment No. 1, located on the ground floor and 1st floor of building B in a modern complex of three buildings
Mehr lesen
Objekt ID: 1600647
Preis: € 385.000
Nutzfläche: 0 m2
Gesamtfläche: 0 m2
Ziimmer insgesamt: 3
Schlafzimmer: 3
Badezimmer: 1
Nutzungsart: Wohnen
Provisionspflichtig: ja
WC: 1


























