Objektbeschreibung
Commercial space 70 m from the sea – Kaštela, Building A
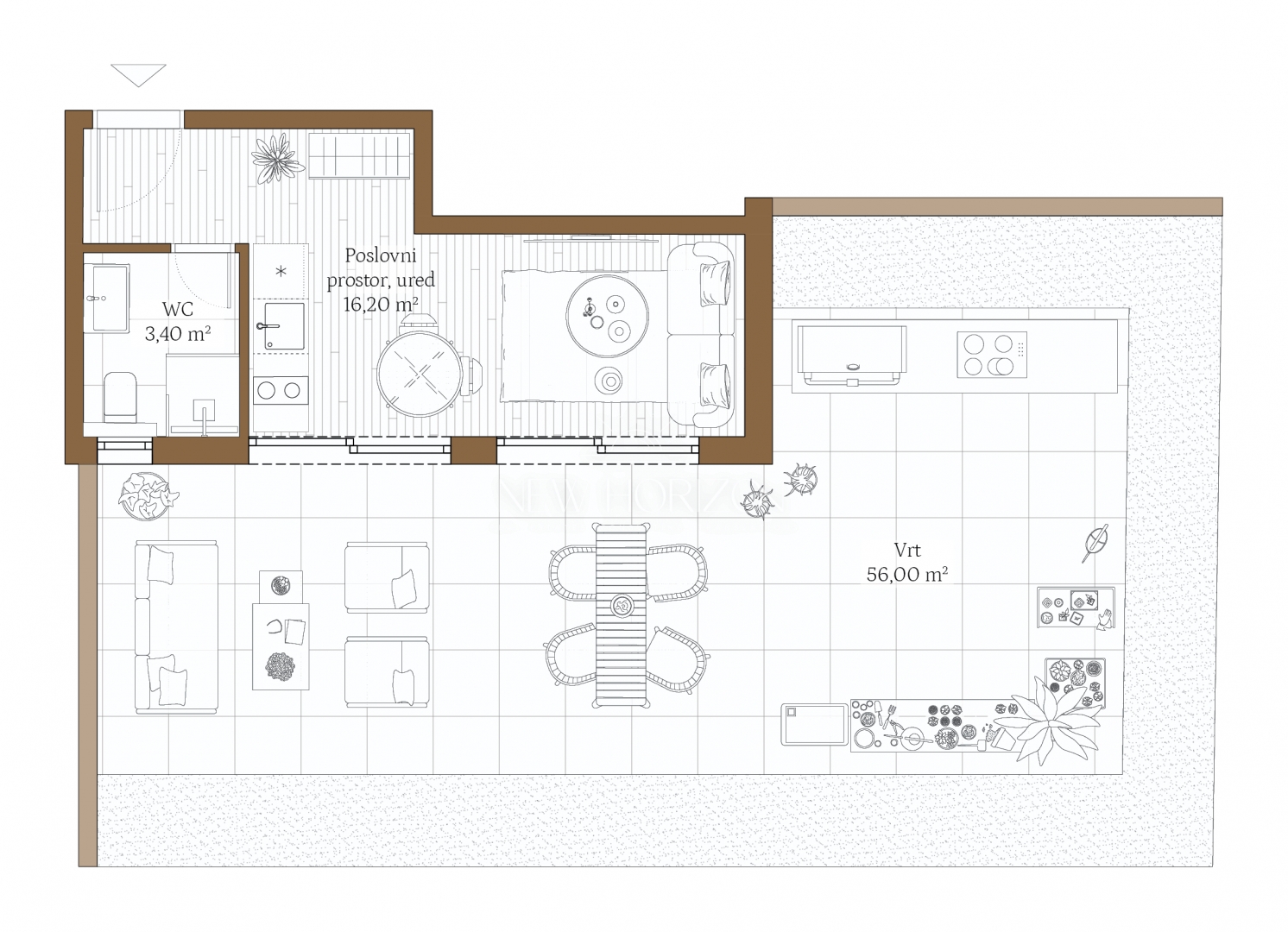
We invite you to familiarize yourself with the unique offer for the sale of commercial space No. 2, located on the ground floor of building A in a modern complex of three buildings located in picturesque Sukošan –
Mehr lesen
Objekt ID: 1600689
Preis: € 140.000
Nutzfläche: 0 m2
Gesamtfläche: 0 m2
Ziimmer insgesamt: 1
Schlafzimmer: 1
Badezimmer: 1
Nutzungsart: Wohnen
Provisionspflichtig: ja

























