Erweiterte Suche
Andere Eigenschaften
Suchagent aktivieren
Exklusive Anzeigen

Villa Snašići, Sveta Nedelja, 283m2

€ 986.000,00

,

4 Zimmer
zu Favoriten hinzufügen
teilen
Suchergebnisse

Objektbeschreibung

ID CODE: 727

Bezirk:
PLZ: 52220
Land: Croatia
Objekt ID: 1602400
Preis: € 986.000
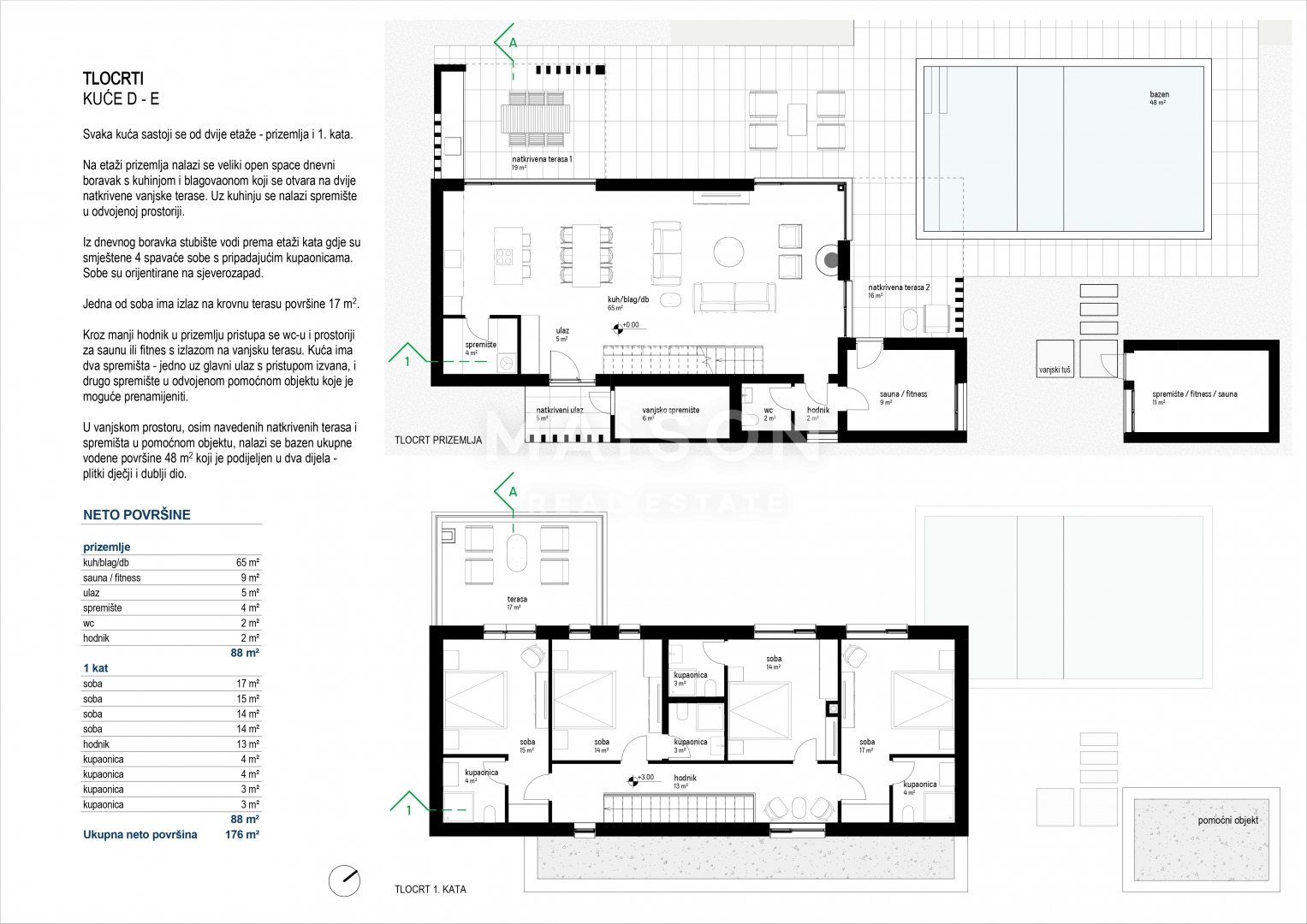
Nutzfläche: 0 m2
Gesamtfläche: 2.642 m2
Ziimmer insgesamt: 4
Schlafzimmer: 4
Badezimmer: 4
Nutzungsart: Wohnen
Provisionspflichtig: ja
WC: 1

Ähnliche Objekte

vergleichen
1749717796 natasha2

Labin Umgebung, Schönes Haus mit Pool in ruh...

€ 520.000
5
Schlafzimmer
4
Badezimmer
November 9, 2025
vergleichen
1716468678 img 3424

Haus Nedešćina, Sveta Nedelja, 278m2

€ 832.000
6
Schlafzimmer
5
Badezimmer
November 9, 2025
vergleichen
1719322363 9159e4ee 4e4d 483f a997 45a94a2511d3

ISTRIEN, SANTALEZI, STEINHAUS MIT SCHWIMMBAD...

€ 745.000
7
Schlafzimmer
2
Badezimmer
November 9, 2025


Antonija Mandić

Kontaktaufnahme









    • Preisinformation
      Objektpreis986.000,00 €

    Vergleichen