Erweiterte Suche
Suchagent aktivieren
Exklusive Anzeigen

Villa Snašići, Sveta Nedelja, 283m2

€ 1.016.750,00

,

4 Zimmer
zu Favoriten hinzufügen
teilen
Suchergebnisse

Objektbeschreibung

ID CODE: 726

Bezirk:
PLZ: 52220
Land: Croatia
Objekt ID: 1602447
Preis: € 1.016.750
Nutzfläche: 0 m2
Gesamtfläche: 2.365 m2
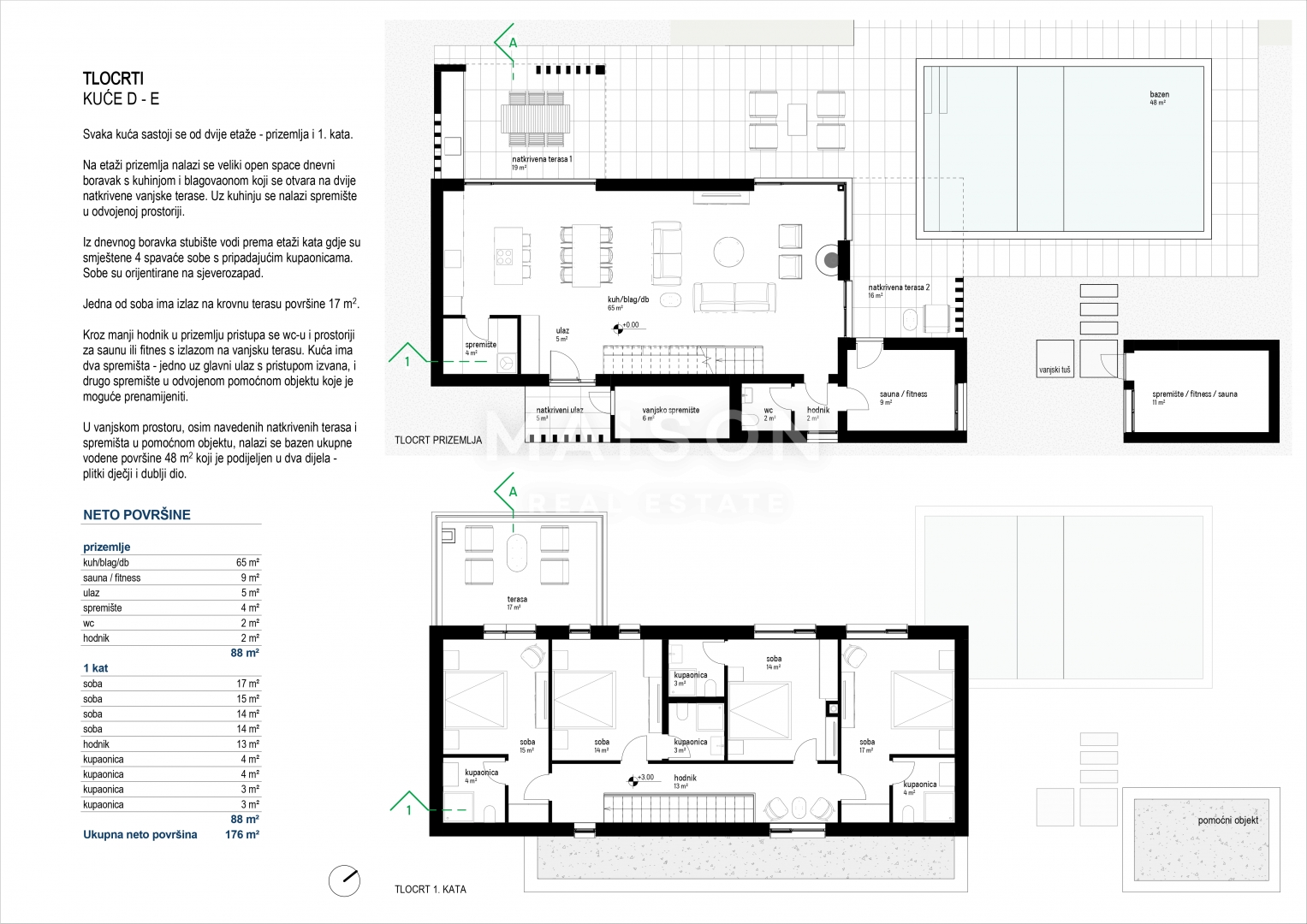
Ziimmer insgesamt: 4
Schlafzimmer: 4
Badezimmer: 4
Nutzungsart: Wohnen
Provisionspflichtig: ja
WC: 1

Ähnliche Objekte

vergleichen
1759748863 whatsapp slika 2025 10 06 u 11

Haus Nedešćina, Sveta Nedelja, 280m2

€ 550.000
9
Schlafzimmer
3
Badezimmer
Mai 8, 2026
vergleichen
1760481623 screenshot 2025 10 15 at 00 38 04 prodaje se prekrasni stan u puli na 5 kat

Authentisches Istrisches Anwesen zum Verkauf...

€ 1
8
Schlafzimmer
2
Badezimmer
Mai 8, 2026
vergleichen
1762276742 img 20251104 wa0011 1

Haus Strmec, Sveta Nedelja, 300m2

€ 450.000
8
Schlafzimmer
4
Badezimmer


Ana Pliško

Kontaktaufnahme









    • Preisinformation
      Objektpreis1.016.750,00 €

    Vergleichen