Objektbeschreibung
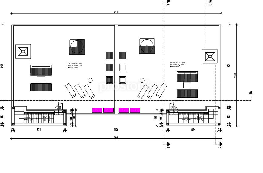
Moderne Villa mit Pool, Dachterrasse und Meerblick – Drage
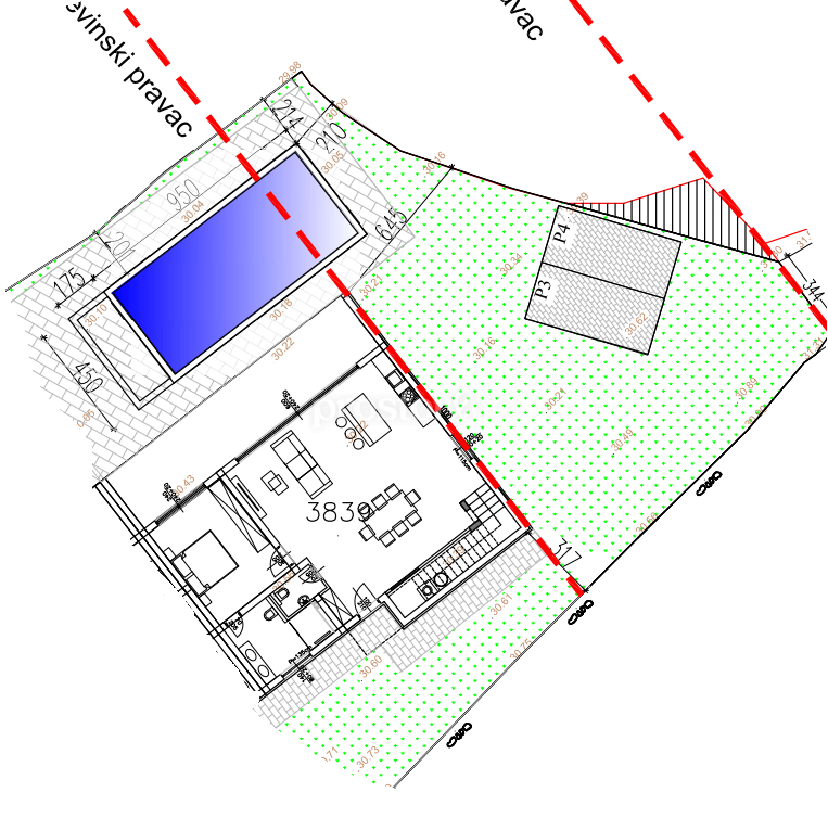
In dem ruhigen Ort Drage, bekannt für sein kristallklares Meer, den neuen Yachthafen und mediterranes Flair, steht eine moderne Doppelhaushälfte zum Verkauf – mit privatem Pool und luxuriöser Dachterrasse.
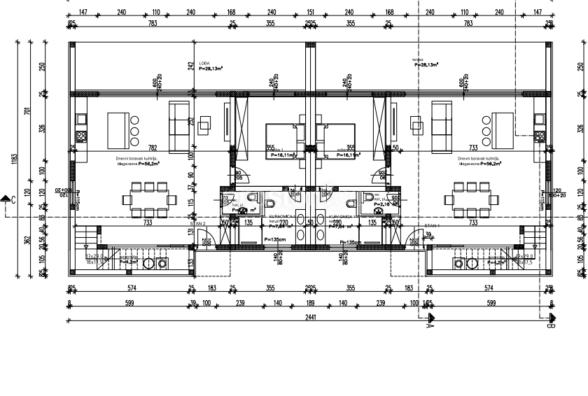
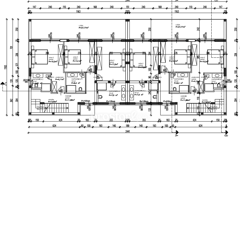
Das Haus erstreckt sich über drei Etagen mit einer Nettonutzfläche von 246,67
Mehr lesen
Objekt ID: 1607087
Preis: € 1.100.000
Nutzfläche: 0 m2
Gesamtfläche: 300 m2
Ziimmer insgesamt: 6
Schlafzimmer: 6
Badezimmer: 4
Nutzungsart: Wohnen
Provisionspflichtig: ja
WC: 1

































