Objektbeschreibung
Istrien, Poreč, Luxus-Penthouse mit Dachterrasse und Meerblick
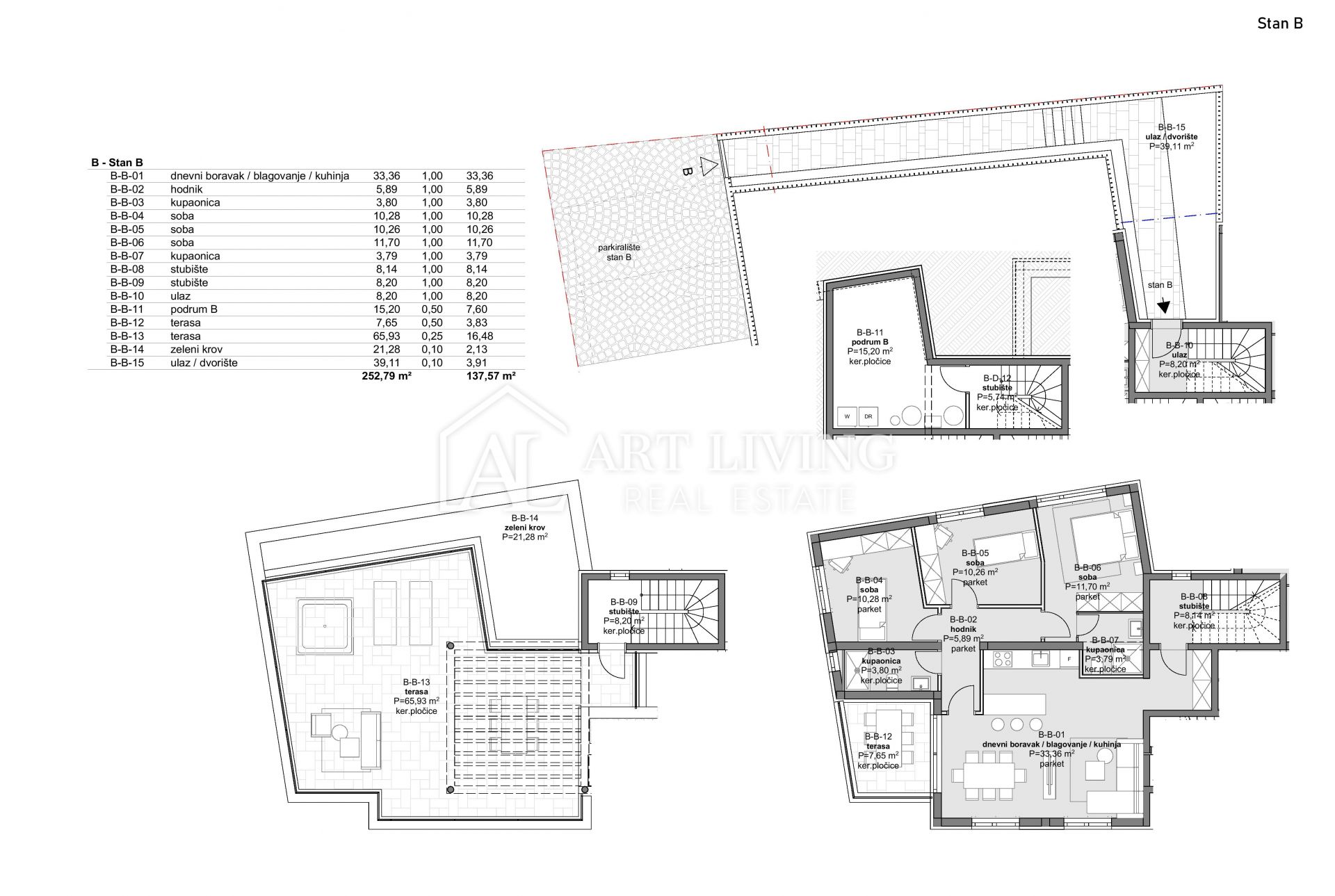
Gebäude B – Wohnung B
In äußerst attraktiver Lage, nur 2 km vom Zentrum von Poreč und 1 km vom Meer und den angelegten Stränden entfernt, steht dieses luxuriöse Penthouse mit Dachterrasse in einem kleinen modernen Wohngebäude mit vier Wohneinheiten zum Verkauf.
Die
Mehr lesen
Objekt ID: 1610580
Preis: € 550.200
Nutzfläche: 0 m2
Gesamtfläche: 0 m2
Ziimmer insgesamt: 4
Schlafzimmer: 4
Badezimmer: 2
Nutzungsart: Wohnen
Provisionspflichtig: ja










